Bürofläche nahe Oranienplatz
10999 Berlin, Bürofläche zur Miete
Kontaktdaten
-
FirmaSRE GmbH
-
AnschriftGrunowstraße 2
13187 Berlin -
E-Mail
-
Telefon
Objektdaten
-
Objekt-ID15038-3.OG-588
-
ObjekttypenBüro/Praxis, Bürofläche
-
Adresse10999 Berlin
(City Ost - Kreuzberg)
Berlin -
Etage3
-
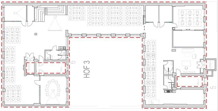
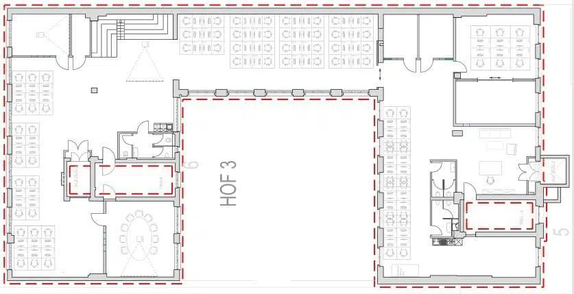
Bürofläche ca.588 m²
-
Mieterprovision (gewerblich)Provisionsfrei
-
Miete pro m²20,90 EUR
-
Nebenkosten4,00 EUR
Objektbeschreibung
Beschreibung
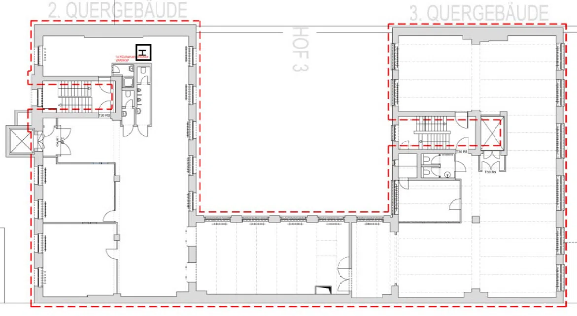
Die Immobilie ist ein denkmalgeschützter Gewerbehof aus der Mitte des 19. Jahrhunderts mit Wohn- und Arbeitsflächen. Das Haupthaus plus Seiten- und Quergebäude entstand um 1850 im klassischen Gründerzeit-Stil, ergänzt durch Überbauungen später. Laut Denkmalliste handelt es sich um ein Mietshaus mit Gewerbehof, das um 1850 errichtet wurde. Ein weiteres Register weist Baujahr und Architekt konkreter aus: Der fünfgeschossige Gewerbehof stammt aus dem Jahr 1850 und umfasst insgesamt rund 5.900 m² Wohn- und Gewerbefläche. Der Architekt ist nicht namentlich genannt. Infrastrukturell wird er heute häufig als gut ausgestattet beschrieben, etwa als heller Shared-Office-Space mit rund 90 m² Bürofläche plus Nebenraum
Irrtum und Zwischenvermietung vorbehalten!
Ausstattung
- Büroloft im Industriedesign
- Elektroverkabelung auf Trassen bzw. Aufputz
- Industrieboden
- Teeküchen
- Grundbeleuchtung
- Fahrstuhlzugang in die Mieteinheit
- Raumaufteilung wie dargestellt
Sonstiges
Irrtum und Zwischenvermietung vorbehalten!
Lage
Skalitzer Straße, Adalbertstraße, Kottbusser Straße, Gitschiner Straße, Prinzenstraße
zwischen Görlitzer Bahnhof und Kottbusser Tor, unweit Köpenicker Straße
Nahversorgung vor Ort
Buslinie M29, 140, U-Bhf. Kottbusser Tor (U1,U3,U8)
10999 Berlin, Berlin, Deutschland (auf Google Maps ansehen)


