Schöne Büroflächen direkt am Treptower Park
12435 Berlin, Bürofläche zur Miete
Kontaktdaten
-
FirmaSRE GmbH
-
AnschriftGrunowstraße 2
13187 Berlin -
E-Mail
-
Telefon
Objektdaten
-
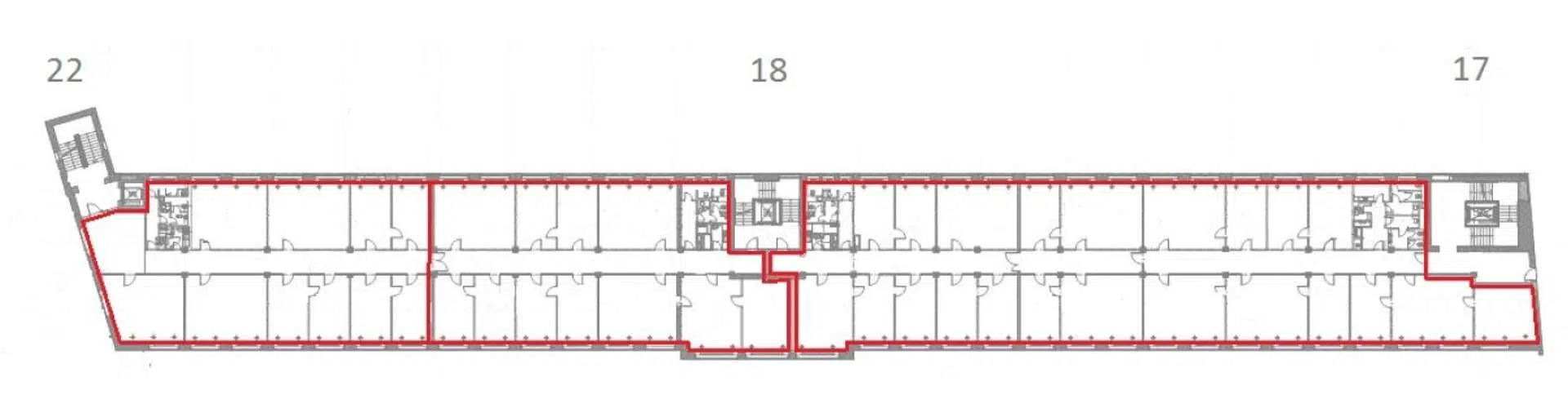
Objekt-ID14466-2.OG-348
-
ObjekttypenBüro/Praxis, Bürofläche
-
Adresse12435 Berlin
(Ost - Treptow)
Berlin -
Etage2
-
Bürofläche ca.347,50 m²
-
Mieterprovision (gewerblich)Provisionsfrei
-
Miete pro m²24,00 EUR
-
Nebenkosten4,00 EUR
Objektbeschreibung
Beschreibung
Die Immobilie befindet sich im Berliner Bezirk Treptow-Köpenick, im Ortsteil Alt-Treptow.
Irrtum und Zwischenvermietung vorbehalten!
Ausstattung
Baujahr: 1926
Sanierung: 1998, denkmalgeschützt
Kühlung: Klimasplitgeräte
Heizung: Zentralheizung
Bodenbelag: Teppichboden
Teeküche: vorhanden
Sonnenschutz: Innenliegend
Verkabelung, IT: Glasfaser, CAT 6, 7
Achsmaß: Auf Anfrage
Deckenart: Rohdecke
Raumhöhe: ca. 3,14 m
Raumaufteilung: Flexibel gestaltbar
Zugangskontrolle: Schlüssel, Chip
Barrierefreiheit: vorhanden
Baujahr: Auf Anfrage
Bodenaufbau: Doppelboden
Ausstattung: Details:
Kühlung: Klimasplitgeräte
Heizung: Zentralheizung
Lage
Treptow, MediaSpree –Bereich
Stralauer Allee, Warschauer Straße, Skalitzer Straße nicht weit entfernt
Beliebter Standort von Mode- und Medienbranche
Nahversorgung vor Ort
S-Bahnhof Treptower Park S8,S9,S41,S42,S85)
12435 Berlin, Berlin, Deutschland (auf Google Maps ansehen)


