Neubauprojekt in bester Mitte-Lage
10178 Berlin, Bürofläche zur Miete
Kontaktdaten
-
FirmaSRE GmbH
-
AnschriftGrunowstraße 2
13187 Berlin -
E-Mail
-
Telefon
Objektdaten
-
Objekt-ID44955-BT10_OG6-841
-
ObjekttypenBüro/Praxis, Bürofläche
-
Adresse10178 Berlin
(City Ost - 1A - Mitte)
Berlin -
Etage6
-
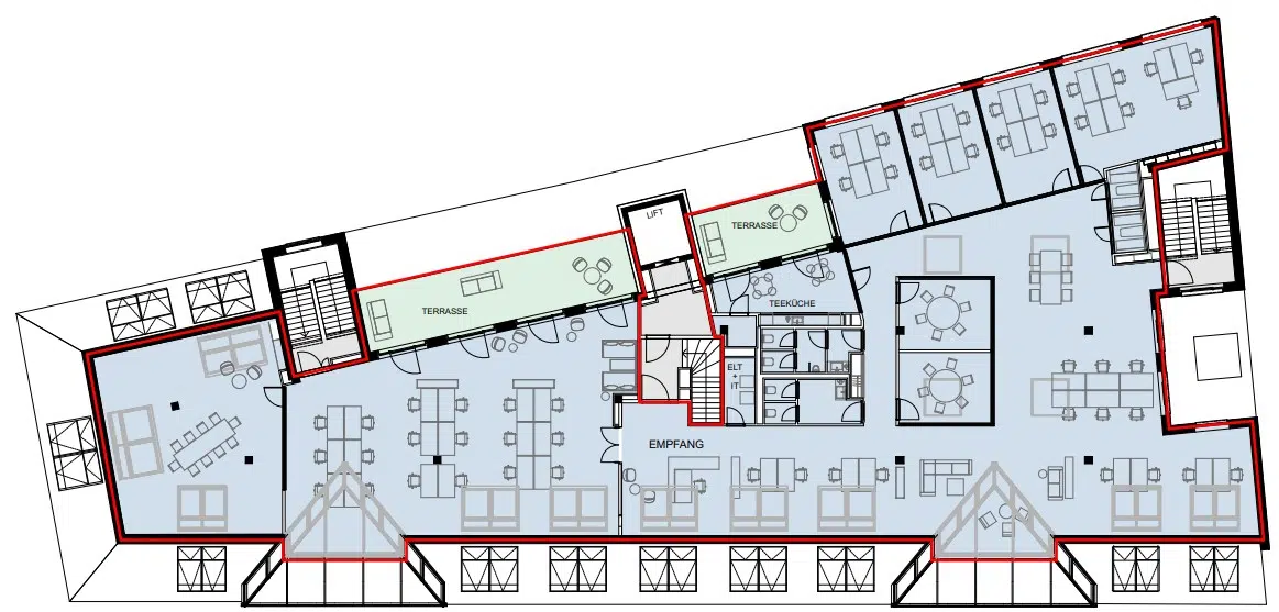
Bürofläche ca.841,46 m²
-
Mieterprovision (gewerblich)Provisionsfrei
-
Miete pro m²33,00 EUR
-
Nebenkosten3,80 EUR
Objektbeschreibung
Beschreibung
Die Immobilie entstand 1913/14 als Geschäftshaus und zählt heute sechs Etagen.
inklusive Terrasse mit 58,60 m² + Kühldecke – Erstbezug
Ausstattung
Baujahr: 1912
Sanierung: 2022
Besetzter Empfang: nein
Personenaufzug / Anzahl: ja
Lastenaufzug: nein
Öffenbare Fenster: ja
Wände: Glaswände
Deckenart: Betondecken mit gespritzter Akustik
Dusche: optional
Kabelführung: Bodenkanäle
Strukturierte Verkabelung: Mietersache
Küche: vorhanden
Sanitärbereich: getrennte Sanitäreinheiten
Lichte Raumhöhe ca.: ca. 4,60 m
Klimatisierung: im DG, weitere Etagen optional
Barrierefrei: ja
Pkw – Stellplätze: in der Nähe
Fahrrad – Stellplätze: auf Anfrage
Umsatzsteuerfreie Anmietung: auf Anfrage
Terrasse: ja
Sonstiges
Irrtum und Zwischenvermietung vorbehalten!
Lage
zwischen Alexanderplatz und Schillingstraße
Lichtenberger Straße, Alexanderstraße, Mollstraße, Holzmarktstraße
Nahversorgung vor Ort
S+U-Bhf Alexanderplatz (M2, M4, M5, M6, S3, S5, S7, S9, U2, U5, U8, RB, RE), U-Bhf Schillingstraße (U5)
10178 Berlin, Berlin, Deutschland (auf Google Maps ansehen)


