Mitten in Mitte, neben der Friedrichstraße
10117 Berlin, Bürofläche zur Miete
Kontaktdaten
-
FirmaSRE GmbH
-
AnschriftGrunowstraße 2
13187 Berlin -
E-Mail
-
Telefon
Objektdaten
-
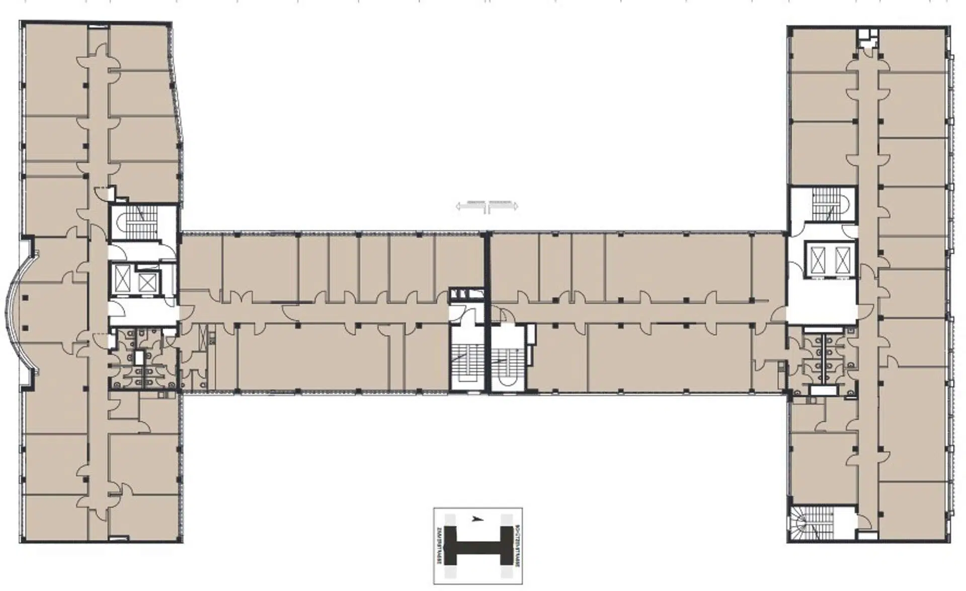
Objekt-ID14374-2.OG-570
-
ObjekttypenBüro/Praxis, Bürofläche
-
Adresse10117 Berlin
(City Ost - 1A - Mitte)
Berlin -
Etage2
-
Bürofläche ca.570 m²
-
Mieterprovision (gewerblich)Provisionsfrei
-
Miete pro m²22,00 EUR
-
Nebenkosten4,00 EUR
Objektbeschreibung
Beschreibung
Bei einer Mietlaufzeit bis maximal 5 Jahre = Mietpreis ab 22 €/m², Flächen werden vom Vermieter malermäßig überarbeitet und mit einem neuen Fußbodenbelag ausgestattet. Kosten für zusätzliche Umbaumaßnahmen sind direkt vom Mieter zu tragen.
Bei einer Mietlaufzeit ab mindestens 84 Monaten = Mietpreis ab 25 €/m² (ohne Kühlung), Ausbau nach Mieterwunsch
In 2026 kommen weitere Flächen hinzu, so dass auch zusammenhängende Flächen bis ca. 4.000 m² angemietet werden können.
Ausstattung
Baujahr: 1995
Besetzter Empfang: ja
Wachschutz: ja
Personenaufzug/ Anzahl: ja, rollstuhlgerecht
Lastenaufzug: nein
Öffenbare Fenster: ja
Wände: Gipskartonständerwände
Deckenart: angehangen oder gespachtelt
Bodenbelag: Teppichboden
Sonnenschutz: außenliegend, elektrisch
Dusche: optional
Beleuchtung: blendfreie Beleuchtungssysteme
Kabelführung. Hohlraumboden
Strukturierte Verkabelung: vorhanden
Küche: Teeküche
Sanitärbereich: getrennte Sanitärbereiche
Lichte Raumhöhe ca.: 2,80 m – 2,90 m
Barrierefrei: ja
Pkw – Stellplätze: in der Tiefgarage anmietbar für 120,00€/Stk.
Umsatzsteuerfreie Anmietung: auf Anfrage
Terrasse: exklusiv im 8. OG
Lage
Im Zeitungsviertel in Mitte, an der Grenze zu Kreuzberg gelegen
Friedrichstraße und Gendramenmarkt in der Nähe
Nahversorgung im Umfeld vorhanden
U-Bahnhof Kochstraße (U6), Buslinien M29, 265
10117 Berlin, Berlin, Deutschland (auf Google Maps ansehen)
















