Büros auf der Spreeinsel in Berlin
10587 Berlin, Bürofläche zur Miete
Kontaktdaten
-
FirmaSRE GmbH
-
AnschriftGrunowstraße 2
13187 Berlin -
E-Mail
-
Telefon
Objektdaten
-
Objekt-ID14802-9.1-9.OG-257
-
ObjekttypenBüro/Praxis, Bürofläche
-
Adresse10587 Berlin
(City-West - 1A - Charlottenburg)
Berlin -
Etage9
-
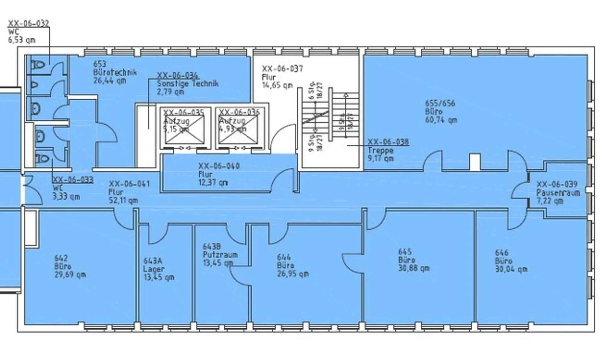
Bürofläche ca.257,34 m²
-
Mieterprovision (gewerblich)Provisionsfrei
-
Miete pro m²25,00 EUR
-
Nebenkosten4,00 EUR
Objektbeschreibung
Beschreibung
Irrtum und Zwischenvermietung vorbehalten!
Ausstattung
Baujahr: 1993
Sanierung: 2004
Besetzter Empfang: nein
Wachschutz: ja
Personenaufzug/ Anzahl: ja
Lastenaufzug: ja, Bauteil A+B bis 6. OG
Öffenbare Fenster: ja
Wände: hochwertig
Deckenart: Abhangdecke
Sonnenschutz: außenliegend
Dusche: optional
Beleuchtung: Deckenbeleuchtung
Klimatisierung: nein
Barrierefrei: ja
Pkw – Stellplätze: in der Tiefgarage anmietbar
Fahrrad – Stellplätze: – Umsatzsteuerfreie Anmietung: auf Anfrage
Terrasse: nein
Ausstattungsmerkmale für Mieterausbau:
- Flexibilität bei der Grundrissgestaltung
- Renovierung/ Sanierung Sanitärbereiche
- Moderne Teeküchen mit Geschirrspüler, Kühlschrank, Spüle
- Konferenzräume mit hohem Glasanteil (gilt für Flächen, die saniert bzw. vom Grundriss verändert werden)
- Bürogrundbeleuchtung LED (neu)
- CAT-Verkabelung über Trassen an den Decken / Kabelkanälen
- Fußboden optional Teppich, Vinyl, Beton oder Estrich
- Repräsentative Mieteingangsbereiche mit Glastüren
- Zugangssystem an den Mieteingangstüren (Transponder oder Karten)
Lage
Auf der Spreeinsel in Charlottenburg
Alt-Moabit, Ernst-Reuter-Platz nicht weit entfernt
Institute der Technischen Universität, Mercedes-Welt am Salzufer in der Umgebung
Nahversorgung vor Ort vorhanden
Buslinien 101, 245 vor dem Objekt
10587 Berlin, Berlin, Deutschland (auf Google Maps ansehen)


