Arbeiten an der Friedrichstraße
10117 Berlin, Bürofläche zur Miete
Kontaktdaten
-
FirmaSRE GmbH
-
AnschriftGrunowstraße 2
13187 Berlin -
E-Mail
-
Telefon
Objektdaten
-
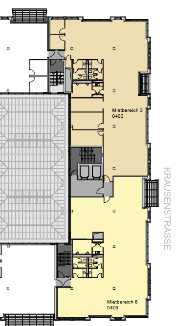
Objekt-ID14320-4.OG-827
-
ObjekttypenBüro/Praxis, Bürofläche
-
Adresse10117 Berlin
(City Ost - 1A - Mitte)
Berlin -
Etage4
-
Bürofläche ca.827 m²
-
Mieterprovision (gewerblich)Provisionsfrei
-
Miete pro m²30,50 EUR
-
Nebenkosten6,00 EUR
Objektbeschreibung
Beschreibung
Das Büro- und Geschäftsgebäude wurde im Jahre 1997 errichtet und befindet sich an einem geschichtsträchtigen Ort Berlin, dem ehemaligen Grenzübergang Checkpoint Charlie. Benannt nach dem Architekten ist das Philipp-Johnson-Haus ein echtes Architektur Highlight in Berlin.
- Über den folgenden Link bekommen Sie Zugang zu 3 verschiedenen Blickpunkten in der Mietfläche
- Mit den Pfeiltasten kann man sich auf jedem der 3 Blickpunkte um 360 Grad drehen
https://berlin.bloomimages.de/B_23_127 %20PIMCO%20F200/vtour/tour.html
Ausstattung
Baujahr: 1997
Besetzter Empfang: ja
Wachschutz: 24h-Security-Service
Personenaufzug/ Anzahl: ja
Öffenbare Fenster: ja
Wände: verputzt, weiß gestrichen
Deckenart: abgehängte Decken
Bodenbelag: Teppich- bzw. Holzbodenbelag
Sonnenschutz: innenliegend, elektrisch
Blendschutz: Sonnenschutzglas
Beleuchtung: Deckenbeleuchtung
Kabelführung: Bodentanks
Strukturierte Verkabelung: CAT-6
Küche: Teeküche
Sanitärbereich: getrennte Einheiten
Lichte Raumhöhe ca.: 2,85
Klimatisierung: Kühlung
Barrierefrei: ja
Pkw – Stellplätze: auf Anfrage; 190,40 €/ Stk.
Umsatzsteuerfreie Anmietung: auf Anfrage
Terrasse / Balkon: teilweise vorhanden
Sonstiges
Irrtum und Zwischenvermietung vorbehalten!
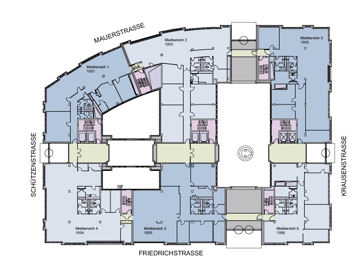
Lage
Gute Lage in der 1A-City-Ost, zwischen Stadtmitte und Checkpoint Charlie
Im Karree von Schützen-/ Krausen-/ Mauer-/ Friedrichstraße
Die Friedrichstraße ist Businessadresse, Geschäftsstraße und Kulturmeile
U-Bahnhöfe Stadtmitte (U2, U6) und Kochstraße (U6)
10117 Berlin, Berlin, Deutschland (auf Google Maps ansehen)




