Büroflächen in Neukölln zu vermieten
10967 Berlin, Bürofläche zur Miete
Kontaktdaten
-
FirmaSRE GmbH
-
AnschriftGrunowstraße 2
13187 Berlin -
E-Mail
-
Telefon
Objektdaten
-
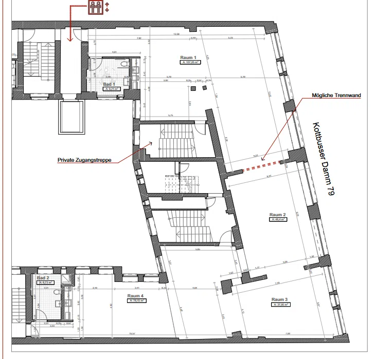
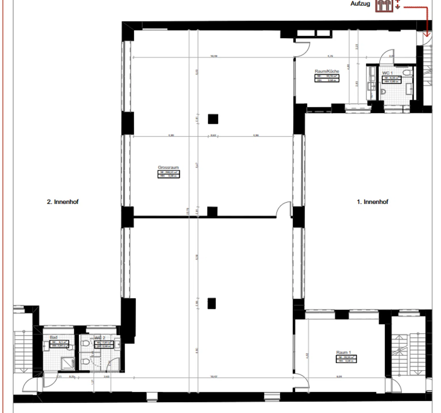
Objekt-ID375514-1.OG-289
-
ObjekttypenBüro/Praxis, Bürofläche
-
AdresseKottbusser Damm 79
10967 Berlin
(Süd - Neukölln)
Berlin -
Etage1
-
Bürofläche ca.289,49 m²
-
Mieterprovision (gewerblich)Provisionsfrei
-
Miete pro m²23,00 EUR
-
Nebenkosten3,50 EUR
Objektbeschreibung
Sonstiges
Irrtum und Zwischenvermietung vorbehalten!
Lage
Die Immobilie befindet sich in zentraler Lage im lebendigen Kreuzberg. In unmittelbarer Nähe liegen die U-Bahnlinien U7 und U8 sowie mehrere Buslinien, die eine hervorragende Anbindung an den öffentlichen Nahverkehr bieten. Einkaufsmöglichkeiten des täglichen Bedarfs, Supermärkte, Cafés und Restaurants sind fußläufig erreichbar. Die Immobilie liegt zwischen den bekannten Straßen Hermannplatz, Sonnenallee und Hasenheide.
Kottbusser Damm 79, 10967 Berlin, Berlin, Deutschland (auf Google Maps ansehen)



