Stylische Bürofläche in historischem Gebäude
10961 Berlin, Bürofläche zur Miete
Kontaktdaten
-
FirmaSRE GmbH
-
AnschriftGrunowstraße 2
13187 Berlin -
E-Mail
-
Telefon
Objektdaten
-
Objekt-ID14567-2.OG-594
-
ObjekttypenBüro/Praxis, Bürofläche
-
Adresse10961 Berlin
(City Ost - Kreuzberg)
Berlin -
Etage2
-
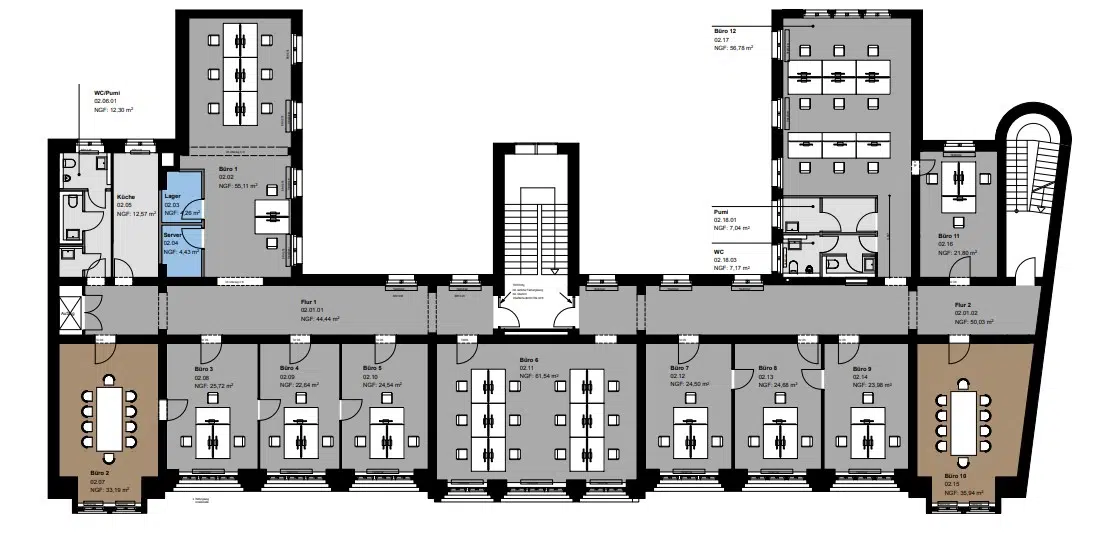
Bürofläche ca.594 m²
-
Mieterprovision (gewerblich)Provisionsfrei
-
Miete pro m²22,50 EUR
-
Nebenkosten3,00 EUR
Objektbeschreibung
Beschreibung
Das Gebäude wurde um 1900 gebaut und befindet sich in der Liste der Berliner Baudenkmäler. Es wurde komplett saniert und beinhaltet einzigartige Büroetagen sowie ein tolles Gastronomiekonzept, was zum Mittagessen oder Kaffee trinken einlädt.
Laufzeit: 12–24 Monate 22,50€/m²
Laufzeit: 60 monate 27,50 €/m²
Ausstattung
Baujahr: 1900
Sanierung: 2016 / 2017
Besetzter Empfang:nein
Personenaufzug / Anzahl: nein
Lastenaufzug: nein
Öffenbare Fenster: ja, Doppelfenster
Wände: Stein oder Gipskartonständerwände
Deckenart: mit Schallschutzelementen
Bodenbelag: Parkett
Sonnenschutz: mieterseits, innenliegend
Blendschutz: nein
Dusche: ja
Beleuchtung: Deckenbeleuchtung
Kabelführung: Kabelkanäle an der Decke
Strukturierte Verkabelung: ja
Küche: Teeküche mit Geräten
Sanitärbereich: getrennte Sanitäreinheiten
Klimatisierung: nein
Barrierefrei:ja
Pkw – Stellplätze: auf Anfrage
Fahrrad – Stellplätze: auf Anfrage
Umsatzsteuerfreie Anmietung: auf Anfrage
Terrasse: nein
Lage
Direkt am Landwehrkanal zwischen Mehringplatz und Blücherstraße gelegen
Ehemalige Postliegenschaft, die unter Denkmalschutz steht; Baujahr 1900
Nahversorgung im Umfeld vorhanden
U-Bahnhof Hallesches Tor (U1, U6), Buslinien M19, M41, 248
10961 Berlin, Berlin, Deutschland (auf Google Maps ansehen)


