Großzügige Büroflächen nahe Grunewald
10711 Berlin, Bürofläche zur Miete
Kontaktdaten
-
FirmaSRE GmbH
-
AnschriftGrunowstraße 2
13187 Berlin -
E-Mail
-
Telefon
Objektdaten
-
Objekt-ID15678-EG+1.OG-745
-
ObjekttypenBüro/Praxis, Bürofläche
-
Adresse10711 Berlin
(City-West - Charlottenburg)
Berlin -
Etage1
-
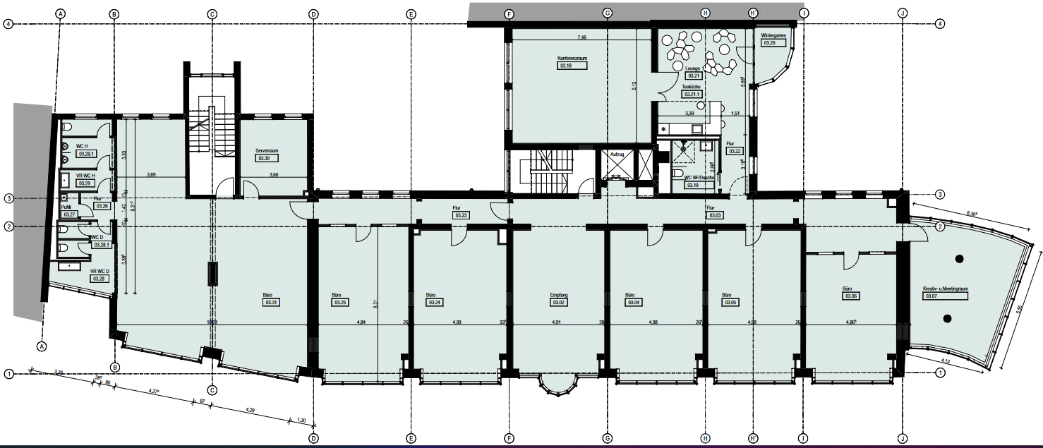
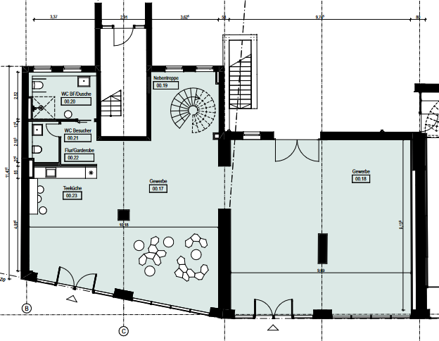
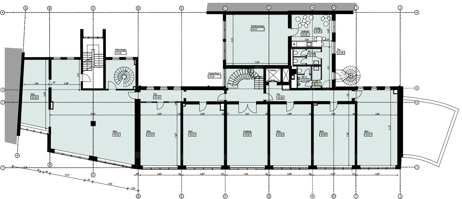
Bürofläche ca.744,80 m²
-
Mieterprovision (gewerblich)Provisionsfrei
-
Miete pro m²25,00 EUR
-
Nebenkosten3,00 EUR
Objektbeschreibung
Beschreibung
Als erstes Haus am Kurfürstendamm, bildet das Objekt zusammen mit der Beton-Cadillac-Skulptur am Rathenauplatz das Tor in die City-West. Durch umfassende Modernisierungen und Instandhaltungen wird die Immobilie an die Bedarfe der heutigen Zeit in Punkto Nachhaltigkeit, Technik und Nutzeranforderungen angepasst. Ziel ist es die optimale Symbiose aus Qualität, Funktionalität
und Wirtschaftlichkeit zu erzielen. Das Gebäude besticht durch die bevorzugte Lage am Kurfürstendamm, gepaart mit einer hervorragenden Sichtbarkeit und seinem hohen Wiedererkennungswert durch die markante Architektur.
Ausstattung
Baujahr: 1950
Sanierung: 1994 / 2021 – 2022
Besetzter Empfang:Nein
Personenaufzug / Anzahl:Ja
Lastenaufzug: Nein
Öffenbare Fenster: Ja
Wände: Gipskartonständerwände
Deckenart: Beton
Bodenbelag: Optional
Dusche: Optional
Beleuchtung: Vorhanden
Kabelführung:Fensterbankkanäle
Strukturierte Verkabelung: Mietersache
Küche: Vorhanden
Sanitärbereich: getrennte Sanitäreinheiten
Umsatzsteuerfreie Anmietung: Nein
Terrasse: Nein
Lage
Am Kurfürstendamm in Halensee gelegen
In der Umgebung: Grunewald, Auffahrt A100, Westkreuz
Nahversorgung vor Ort
S-Bahn Halensee (S4,S46), U-Bahnhof Adenauerplatz (U7), Buslinien M19,M29,X10
10711 Berlin, Berlin, Deutschland (auf Google Maps ansehen)











