Stylishe Büros im Altbauflair
10963 Berlin, Bürofläche zur Miete
Kontaktdaten
-
FirmaSRE GmbH
-
AnschriftGrunowstraße 2
13187 Berlin -
E-Mail
-
Telefon
Objektdaten
-
Objekt-ID14570-EG1-EG-294
-
ObjekttypenBüro/Praxis, Bürofläche
-
Adresse10963 Berlin
(City Ost - Kreuzberg)
Berlin -
EtageEG
-
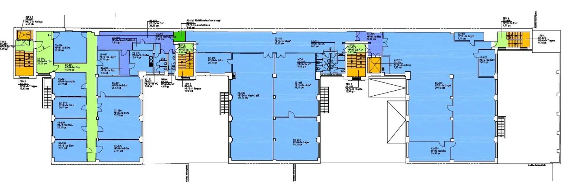
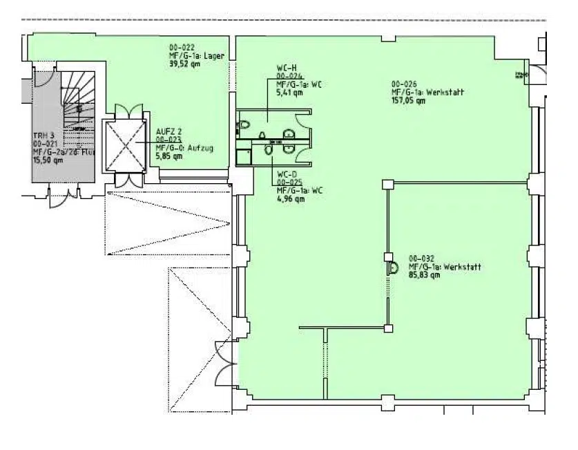
Bürofläche ca.294,20 m²
-
Mieterprovision (gewerblich)Provisionsfrei
-
Miete pro m²25,00 EUR
-
Nebenkosten4,00 EUR
Objektbeschreibung
Beschreibung
- Bezirk: Kreuzberg/Mitte
- Baujahr: ca. 1908
- 2 Aufzüge, modernisiert in 2020
- Lagerflächen verfügbar
- Energieausweis vorhanden
- Glasfaser vorhanden(Versatel/ Colt)
- Grundrissveränderungen und Mieterausbau in
Abstimmung mit dem Vermieter möglich
- Provisionsfrei für den Mieter
Mietlaufzeit: ab 36 Monaten
Ausstattung
- Maximale Flexibilität bei der Grundrissgestaltung
- Herstellung neuer Sanitärbereiche
- Moderne Teeküchen mit Geschirrspüler, Kühlschrank, Spüle
- Konferenzräume mit hohem Glasanteil
- Bürogrundbeleuchtung
- CAT-Verkabelung über Trassen an den Decken
- Fußboden optional Beton, Estrich, Vinyl oder Teppich
- Repräsentative Mieteingangstüren mit Glasanteil
- Zugangssystem an den Mieteingangstüren (Transponder oder Karten)
Lage
Zwischen S-Bahnhof Anhalter Bahnhof und Checkpoint Charlie in Berlin-Kreuzberg
Anhalter Straße, Stresemannstraße, Kochstraße, Hallesches Ufer, Potsdamer Platz
Nahversorgung vor Ort
S-Bahnhof Anhalter Bahnhof (S1, S2, S25), U-Bahnhof Kochstraße (U6), Buslinien M29, M41
10963 Berlin, Berlin, Deutschland (auf Google Maps ansehen)










