Bürofläche in Mitte am Hackeschen Markt
10178 Berlin, Bürofläche zur Miete
Kontaktdaten
-
FirmaSRE GmbH
-
AnschriftGrunowstraße 2
13187 Berlin -
E-Mail
-
Telefon
Objektdaten
-
Objekt-ID47363-DG-411
-
ObjekttypenBüro/Praxis, Bürofläche
-
Adresse10178 Berlin
(City Ost - Hackescher Markt)
Berlin -
Etage4
-
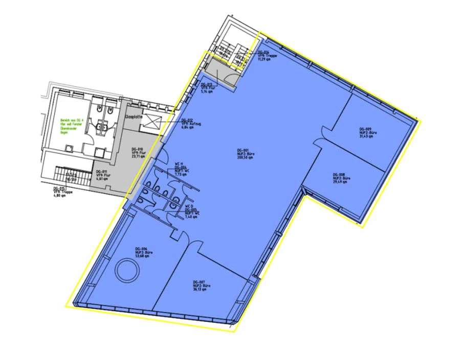
Bürofläche ca.411 m²
-
Mieterprovision (gewerblich)Provisionsfrei
-
Miete pro m²33,00 EUR
-
Nebenkosten3,50 EUR
Objektbeschreibung
Beschreibung
Das Gebäude wurde im Jahr 1877 erbaut und diente sowohl als Wohn- als auch als Geschäftshaus, inklusive einer Etagenfabrik im Hof, die ursprünglich von der Weißbierbrauerei E. Richter & Co. genutzt wurde. Das Gebäude ist denkmalgeschützt und zählt zum historisch bedeutenden Ensemble der Spandauer Vorstadt.
Ausstattung
Baujahr: 1877, Denkmal
Besetzter Empfang: nein
Personenaufzug / Anzahl: nein
Lastenaufzug: nein
Öffenbare Fenster: ja
Wände: Stein
Deckenart: Preußische Kappendecke / Teilweise Stuck
Bodenbelag: Teppichboden / Parkett
Sonnenschutz: Vorhanden, innenliegend
Blendschutz: nein
Dusche: nein
Küche: vorhanden
Sanitärbereich: getrennte Sanitäreinheiten
Klimatisierung: nein
Barrierefrei: nein
Pkw – Stellplätze: nein
Fahrrad – Stellplätze: nein
Umsatzsteuerfreie Anmietung: auf Anfrage
Terrasse: nein
Sonstiges
Irrtum und Zwischenvermietung vorbehalten!
Lage
gegenüber der Hackeschen Höfe
Neue Schönhauser Straße, Oranienburger Straße, Monbijoupark, Dircksenstraße
Alexanderplatz und Unter den Linden
Nahversorgung vor Ort
S-Bahnhof Hackescher Markt (S3,S5,S7,S9), Tramlinie M1
10178 Berlin, Berlin, Deutschland (auf Google Maps ansehen)

