Office Space in Berlin Mitte zu vermieten
10117 Berlin, Bürofläche zur Miete
Kontaktdaten
-
FirmaSRE GmbH
-
AnschriftGrunowstraße 2
13187 Berlin -
E-Mail
-
Telefon
Objektdaten
-
Objekt-ID124120-EG-676
-
ObjekttypenBüro/Praxis, Bürofläche
-
Adresse10117 Berlin
(City Ost - 1A - Mitte)
Berlin -
EtageEG
-
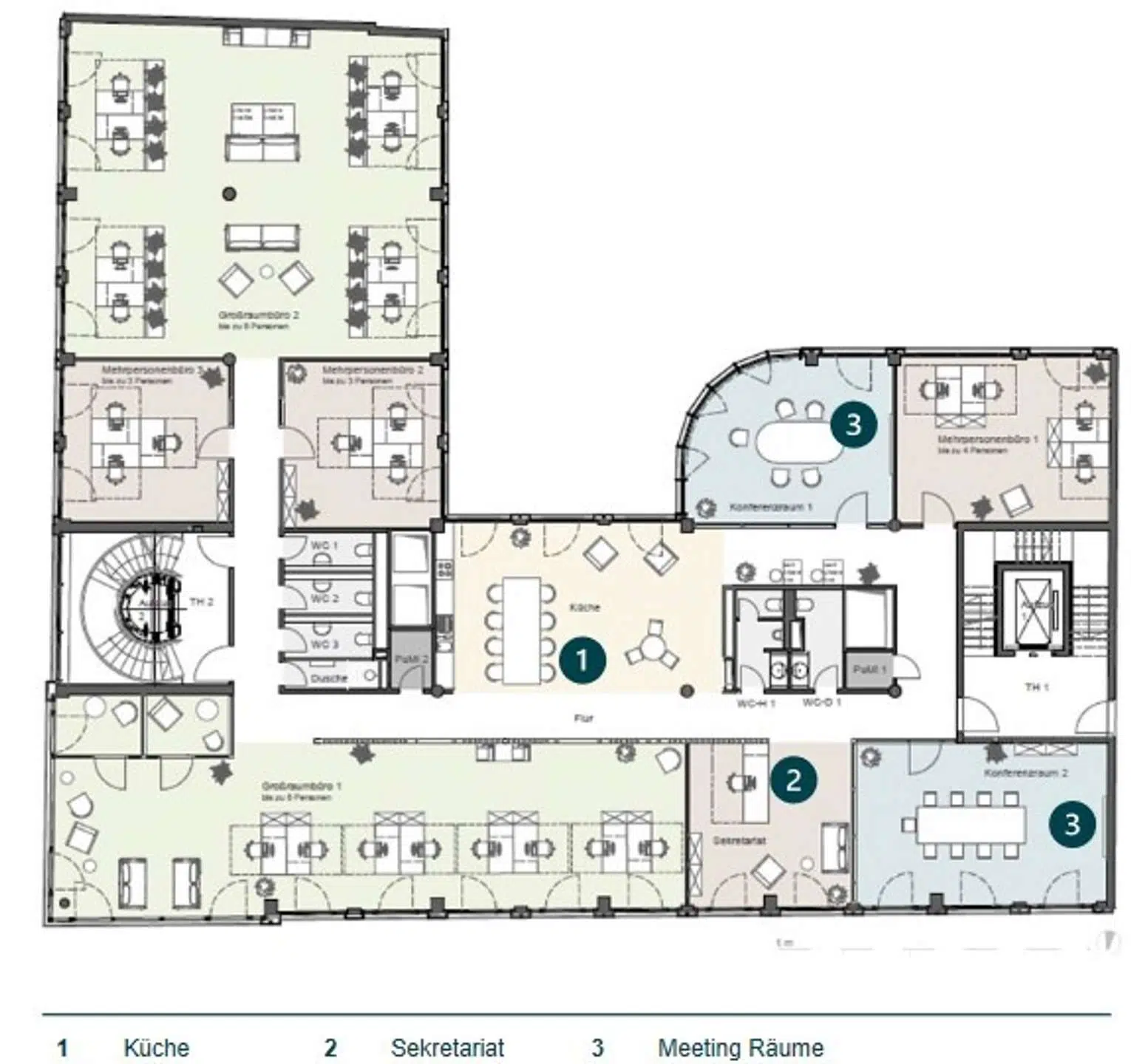
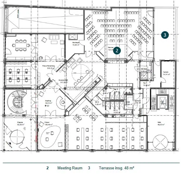
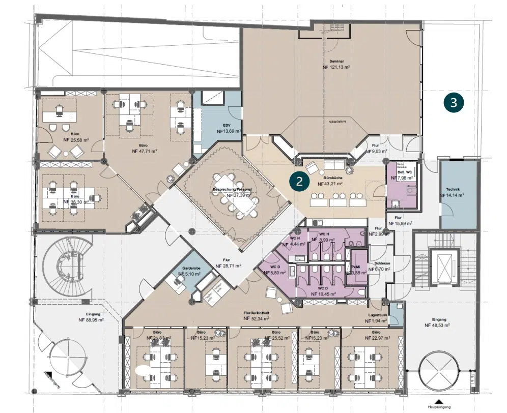
Bürofläche ca.675,62 m²
-
Mieterprovision (gewerblich)Provisionsfrei
-
Preisauf Anfrage
Objektbeschreibung
Beschreibung
Eine moderne Glasfassade in prägnanter Ecklage. Viele Fenster, die Licht in Ihre neue
Bürofläche bringen und Ihnen die nötige Weitsicht geben. In direkter Nähe zur bekannten
Friedrichstraße befindet sich die Immobilie in einer Top-Lage.
Die Fläche im Erdgeschoss mit insgesamt ca. 676 m² lässt sich in zwei Einheiten teilen, ca. 165 m² und 511 m².
Ausstattung
Fenster: Isolierverglaste und öffenbare Fenster mit Alusystemprofilen
Bodenbelag: In Abstimmung mit dem Mieter
Sonnenschutz: Außenliegend, elektrisch
Beleuchtung: Stehfluter
Decken: Abgehängte Decken
Verkabelungsort: Hohlraumböden mit Bodentanks
Kühlung: Kühldeckensegel
Lüftung: Temperierte Lüftungsanlage
Ökostrom: Ökostrom
Personenaufzug / Anzahl: ja
Öffenbare Fenster: ja
Bodenbelag: in Abstimmung mit dem Mieter
Lichte Raumhöhe ca.: 2,40–3,00 m
Sonstiges
Irrtum und Zwischenvermietung vorbehalten!
Lage
Die Immobilie befindet sich im Berliner Ortsteil Mitte, in der historischen Dorotheenstadt. Die Immobilie ist optimal an den öffentlichen Personennahverkehr angebunden. Die Immobilie liegt in unmittelbarer Nähe zur Friedrichstraße, einer der wichtigsten Einkaufsstraßen Berlins mit zahlreichen Geschäften und Boutiquen Die Immobilie befindet sich parallel zum Boulevard Unter den Linden, einem der bekanntesten Prachtboulevards der Stadt.
10117 Berlin, Berlin, Deutschland (auf Google Maps ansehen)



