LoftBüros im Süden von Neukölln

10967 Berlin, Bürofläche zur Miete

Kontaktdaten

Objektdaten

  • Objekt-ID
    42082-5.OG-278
  • Objekttypen
    Büro/Praxis, Bürofläche
  • Adresse
    10967 Berlin
    (Süd - Neukölln)
    Berlin
  • Etage
    5
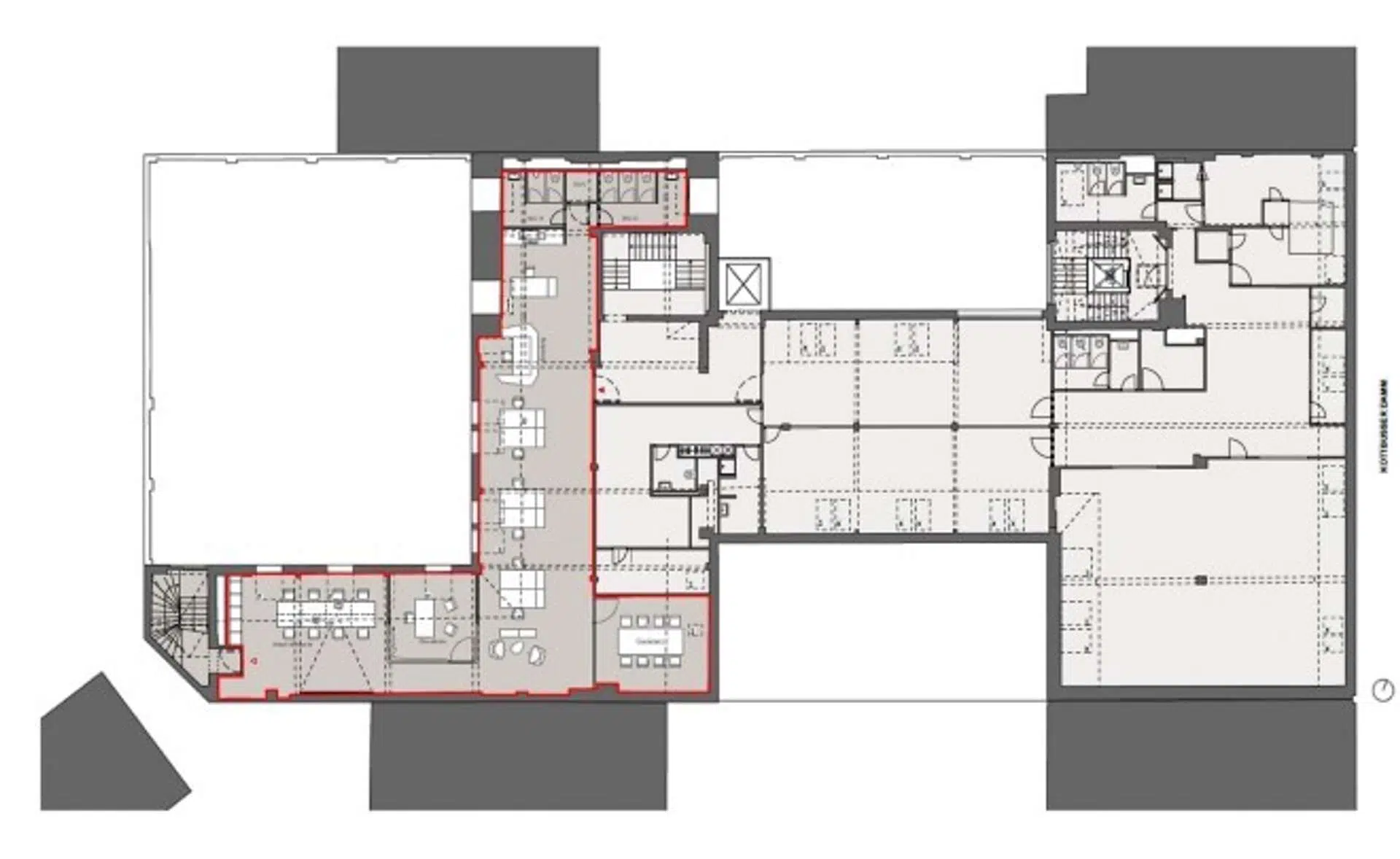
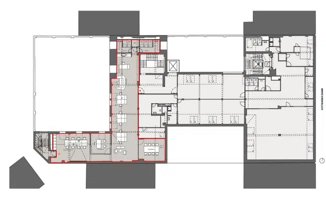
  • Bürofläche ca.
    278,33 m²
  • Verfügbar ab
    sofort
  • Mieter­provision (gewerblich)
    Provisionsfrei
  • Miete pro m²
    25,00 EUR
  • Nebenkosten
    4,50 EUR

Objekt­beschreibung

Die Immobilie Emmler Lofts wurde in den Jahren 1906/1907 ursprünglich als Möbelfabrik errichtet. Der Architekt ist nicht eindeutig dokumentiert; es wird jedoch vermutet, dass Constantin Emmler, der Bruder der Firmeninhaber, das Gebäude entworfen haben könnte. Das viergeschossige Fabrik- und Geschäftshaus zeichnet sich durch eine markante Fassade mit fünf kannelierten Pilastern aus, die von allegorischen Figuren gekrönt werden. Diese Figuren symbolisieren Handel, Industrie und eine Tugend oder Wissenschaft. Im Jahr 1928 zog die erste Woolworth-Filiale Berlins in das Erdgeschoss ein und ist dort bis heute ansässig.

Irrtum und Zwischenvermietung vorbehalten!

Lage

In Neukölln, direkt am Kottbusser Damm / Hohenstaufenplatz, nahe Graefekiez
Grenze zu Kreuzberg, in „Kreuzkölln“
Nahversorgung im Umfeld vielfältig vorhanden
U-Bahnhof Schönleinstraße (U8), Buslinien M29, M41

Direktanfrage

* Pflichtangaben
 SSL-verschlüsselt
Immobiliendaten-Import und Darstellung für WordPress: WP-ImmoMakler