Büro im Quartier Potsdamer Platz
10785 Berlin, Bürofläche zur Miete
Kontaktdaten
-
FirmaSRE GmbH
-
AnschriftGrunowstraße 2
13187 Berlin -
E-Mail
-
Telefon
Objektdaten
-
Objekt-ID14484-12.OG-945
-
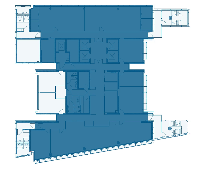
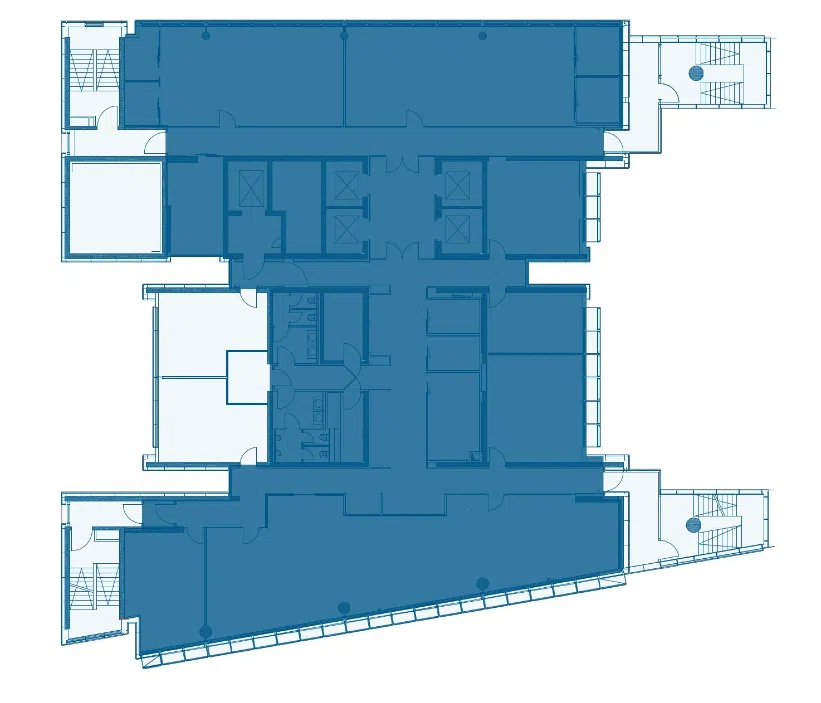
ObjekttypenBüro/Praxis, Bürofläche
-
Adresse10785 Berlin
(City Ost - Potsdamer Platz / Leipziger Platz)
Berlin -
Etage12
-
Bürofläche ca.945 m²
-
Mieterprovision (gewerblich)Provisionsfrei
-
Miete pro m²36,00 EUR
Objektbeschreibung
Beschreibung
Das Gebäude umfasst 22 Etagen und erreicht eine Höhe von 106 m, womit es zu den höchsten Hochhäusern Berlins zählt. Es verfügt über eine doppelte Fassadenverglasung und ein imposantes Atrium, das sich über sieben Geschosse erstreckt.
Ausstattung
Baujahr: 1997
Sanierung: 2018
Besetzter Empfang: ja
Personenaufzug/ Anzahl: ja
Öffenbare Fenster: ja, z.T. bodentiefe Fenster Glastüren
Bodenbelag: nach Mieterwunsch
Beleuchtung: Bildschirmarbeitsplatzgerechte
Kabelführung: Hohlraum-/ Doppelboden
Strukturierte Verkabelung: CAT- Verkabelung
Küche: ja
Sanitärbereich: ja
Lichte Raumhöhe ca.: 3,00 – 3,50 m
Raumtiefe ca.: 5,50 – 6,40 m
Klimatisierung: Kühldecken (im Tower)
Barrierefrei: ja
Pkw – Stellplätze: ja, auf Anfrage
Fahrrad – Stellplätze: ja
Umsatzsteuerfreie Anmietung: auf Anfrage
Terrasse: ja, Dachterrasse / Balkon im 7. OG
Sonstiges
Irrtum und Zwischenvermietung vorbehalten!
Lage
Im Quartier Potsdamer Platz
City Ost mit Friedrichstraße, Mall of Berlin nicht weit entfernt
Nahversorgung vor Ort vorhanden
Bahnhof Potsdamer Platz: S- und U-Bahn (S1, S2, S25, U2), Regional- und Fernverkehr, Buslinien 200, M41, M48, M85
10785 Berlin, Berlin, Deutschland (auf Google Maps ansehen)






















