Bürofläche in der Bergmannstraße zu vermieten
10961 Berlin, Bürofläche zur Miete
Kontaktdaten
-
FirmaSRE GmbH
-
AnschriftGrunowstraße 2
13187 Berlin -
E-Mail
-
Telefon
Objektdaten
-
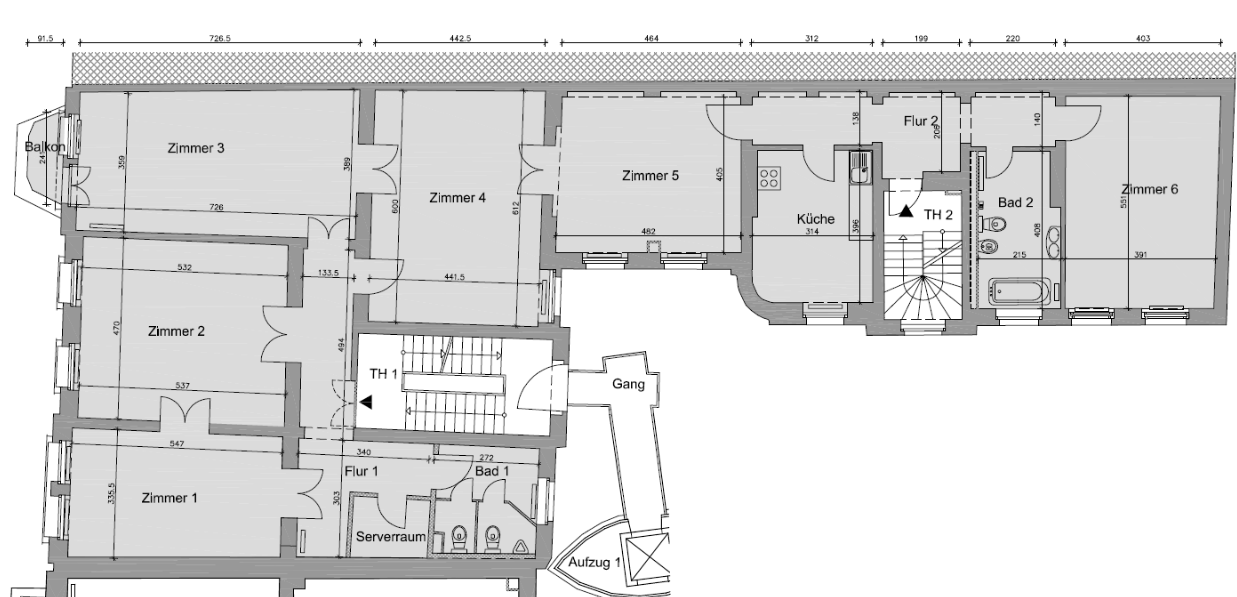
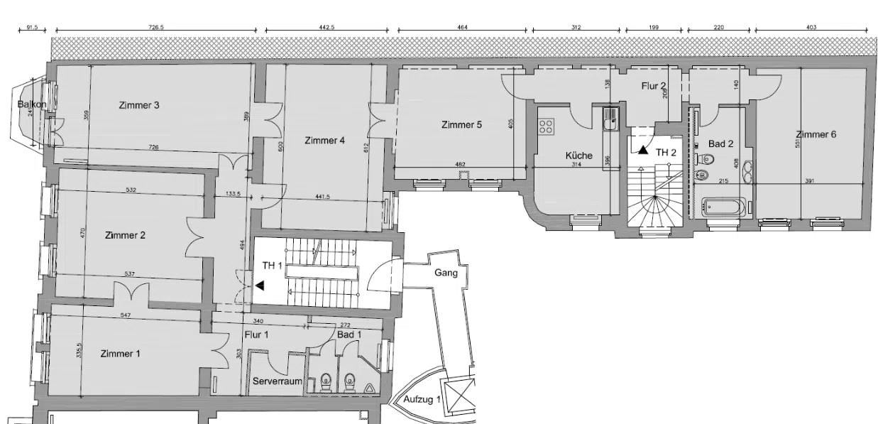
Objekt-ID102309-3.OG-190
-
ObjekttypenBüro/Praxis, Bürofläche
-
AdresseBergmannstraße 102/103
10961 Berlin
(City Ost - Kreuzberg)
Berlin -
Etage3
-
Bürofläche ca.190 m²
-
Mieterprovision (gewerblich)Provisionsfrei
-
Miete pro m²18,00 EUR
-
Nebenkosten4,50 EUR
Objektbeschreibung
Beschreibung
Mietvertragslaufzeit von 1 Jahr gewünscht.
Ausstattung
Das klassische Altbaubüro im Vorderhaus ist vollständig saniert.
- neues Parkett
- neue WC-Kerne
- neue Elektrogrundverkabelung inkl. Grundausstattung EDV
- neue Teeküche
- auf Wunsch Altbautüren und Glaselemente
Sonstiges
Irrtum und Zwischenvermietung vorbehalten!
Lage
Direkte Lage am Marheinekeplatz in Berlin-Kreuzberg
Traditionelle Kiez-Kultur rund um die Bergmannstraße und die bekannte Marheineke-Markthalle
U-Bahnhöfe Gneisenaustraße (U7) und Mehringdamm (U6), Buslinien 140 und 248
Bergmannstraße 102/103, 10961 Berlin, Berlin, Deutschland (auf Google Maps ansehen)
