Büro- und Lagerflächen in Reinickendorf
13509 Berlin, Bürofläche zur Miete
Kontaktdaten
-
FirmaSRE GmbH
-
AnschriftGrunowstraße 2
13187 Berlin -
E-Mail
-
Telefon
Objektdaten
-
Objekt-ID15566-Geb153-1.OG-471
-
ObjekttypenBüro/Praxis, Bürofläche
-
Adresse13509 Berlin
(Nord - Reinickendorf)
Berlin -
Etage1
-
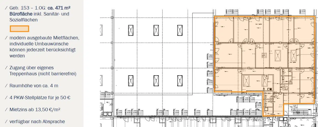
Bürofläche ca.471 m²
-
Mieterprovision (gewerblich)Provisionsfrei
-
Miete pro m²8,00 EUR
Objektbeschreibung
Beschreibung
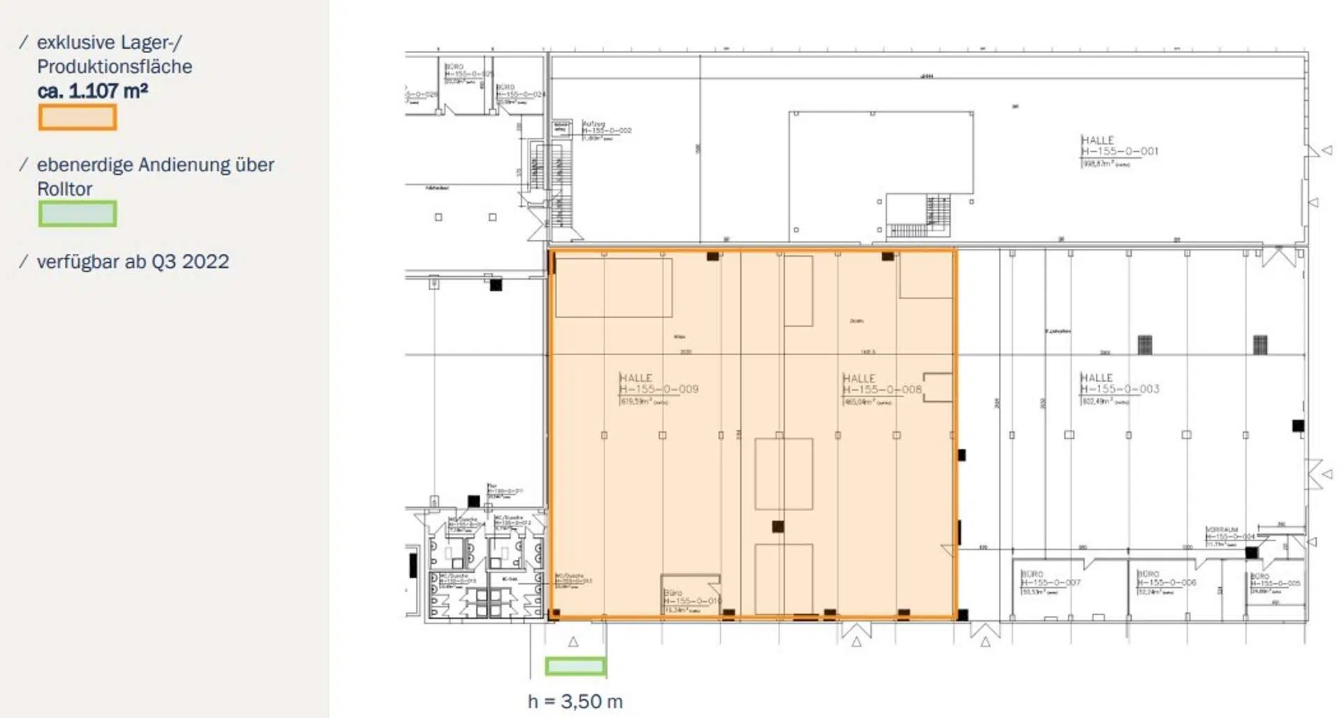
modern ausgebaute Mietfläche, Zugang über eigenes Treppenhaus (nicht barrierefrei), Raumhöhe von ca. 4 m, zzgl. 3–4 PKW-Stellplätze verfügbar.
Ausstattung
Baujahr: 1922 und 1990
Personenaufzug: Geb. 139: ja / Geb.153: in Planung
Lastenaufzug: Geb. 153: ja, für bis zu 1t Traglast
Barrierefrei: teilweise
Bodenbelag: nach Wunsch des Mieters
Sonnenschutz: teilweise
Beleuchtung: Grundausstattung
Sanitärbereich: ja
Lichte Raumhöhe ca.: Lagerhalle 10 m
Pkw – Stellplätze: ja
Fahrrad – Stellplätze: ja
Terrasse: im Geb. 139, 3. OG
Lage
umgeben von der Gorkistraße, dem Eichborndamm und der Wittestraße, unweit der A111
Starke Entwicklungsdynamik, sehr gute Infrastruktur
Nahversorgung fußläufig erreichbar
Flughafen Tegel 6 km entfernt, Rathaus Reinickendorf
Buslinien X33,322, U-Bahnhof Rathaus Reinickendorf (U8), U-Bahnhof Holzhauser Straße (U6) ca. 5 Gehminuten entfernt
13509 Berlin, Berlin, Deutschland (auf Google Maps ansehen)




