Büro in Mitte – Top Lage mit Terrasse
10178 Berlin, Bürofläche zur Miete
Kontaktdaten
-
FirmaSRE GmbH
-
AnschriftGrunowstraße 2
13187 Berlin -
E-Mail
-
Telefon
Objektdaten
-
Objekt-ID15738-VH-1.+2.OG-394
-
ObjekttypenBüro/Praxis, Bürofläche
-
AdresseMünzstraße 3-5
10178 Berlin
(City Ost - Mitte)
Berlin -
Etage1
-
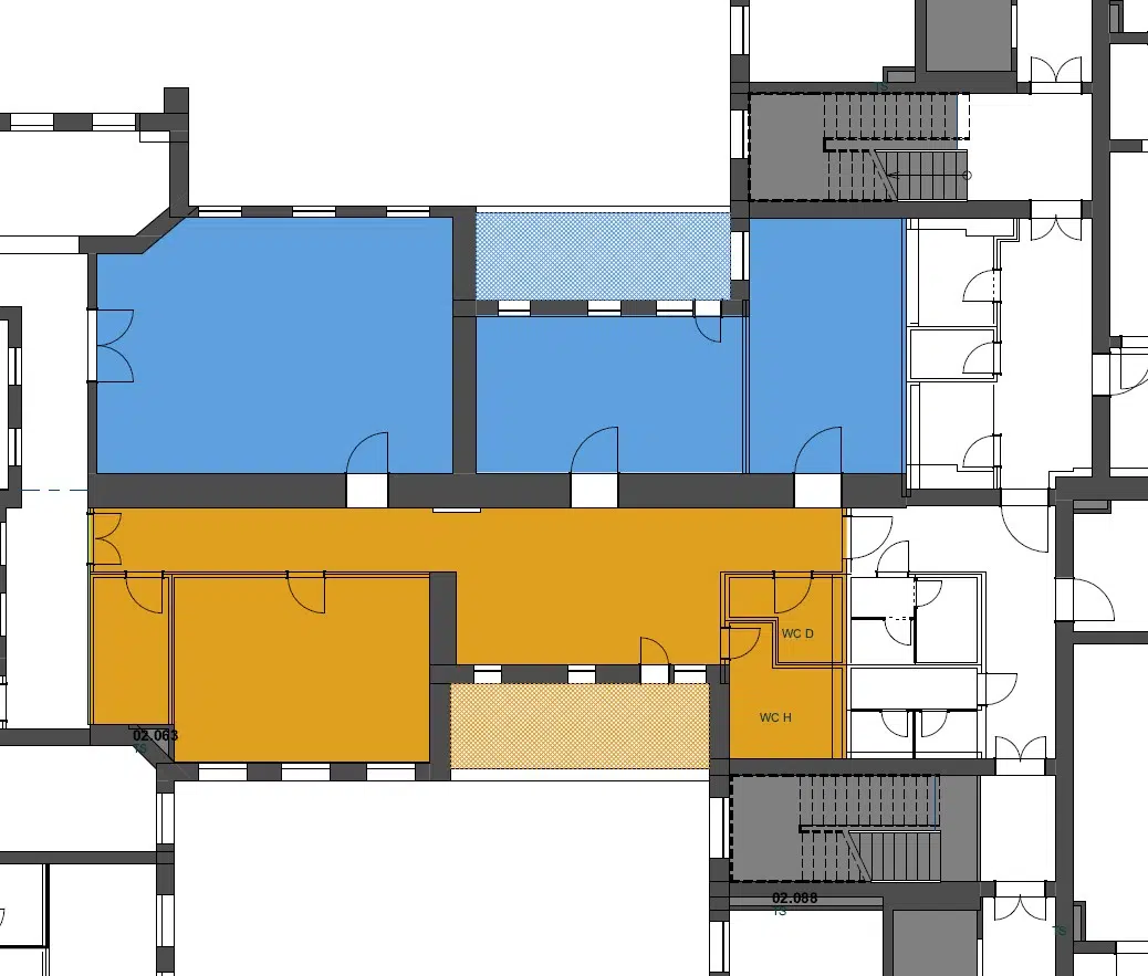
Bürofläche ca.394 m²
-
Mieterprovision (gewerblich)Provisionsfrei
-
Miete pro m²25,00 EUR
-
Nebenkosten4,00 EUR
Objektbeschreibung
Beschreibung
Die Immobilie ist ein repräsentatives Wohn- und Geschäftshaus aus dem Jahr 1881, das 1998 in enger Abstimmung mit der Denkmalschutzbehörde umfassend saniert und modernisiert wurde – mit Erhalt des Altbaucharakters kombiniert es stilvolle Ästhetik und zeitgemäße Ausstattung für Gewerbenutzungen.
Sie liegt mitten im lebendigen Herzen Berlins in einem denkmalgeschützten Ensemble, umgeben von historischen Gründerzeitlern und Gewerbehöfen. Nur wenige Gehminuten trennen es vom historischen Alexanderplatz und dem Hackeschen Markt – ein zentraler Hotspot mit Kultur, Gastronomie und Touristenflair.
Das Büro ist eine Maisonette mit insgesamt ca. 394 m² inkl. Terrasse. Die Fläche ist teilbar in ca. 137 m² / ca. 257 m² (inkl. Terrasse). Die reine Gesamtfläche ohne Terrasse ist 369 m² insgesamt.
Irrtum und Zwischenvermietung vorbehalten!
Ausstattung
Baujahr 1881
Parkmöglichkeiten Im Innenhof
Miete Stellplätze 150€/Stück
Deckenhöhe 3,00 m
EDV vom Mieter zu erbringen
Boden Estrich/ Parkett
Sonstiges
Irrtum und Zwischenvermietung vorbehalten!
Lage
zwischen Alex und Hackeschen Markt
Dircksenstraße, Karl-Liebknecht-Straße, Münzstraße, Alexanderstraße
Nahversorgung vor Ort
Viele Buslinien, Bahnhof Alexanderplatz mit S- und U-Bahn, Regional- und Fernverkehr
Münzstraße 3-5, 10178 Berlin, Berlin, Deutschland (auf Google Maps ansehen)



