Moderne Büroflächen im Industriehof-Stil mit flexiblen Raumstrukturen
13347 Berlin, Bürofläche zur Miete
Kontaktdaten
-
FirmaSRE GmbH
-
AnschriftGrunowstraße 2
13187 Berlin -
E-Mail
-
Telefon
Objektdaten
-
Objekt-ID44922-5.OG-2350
-
ObjekttypenBüro/Praxis, Bürofläche
-
Adresse13347 Berlin
(Nord - Wedding)
Berlin -
Etage5
-
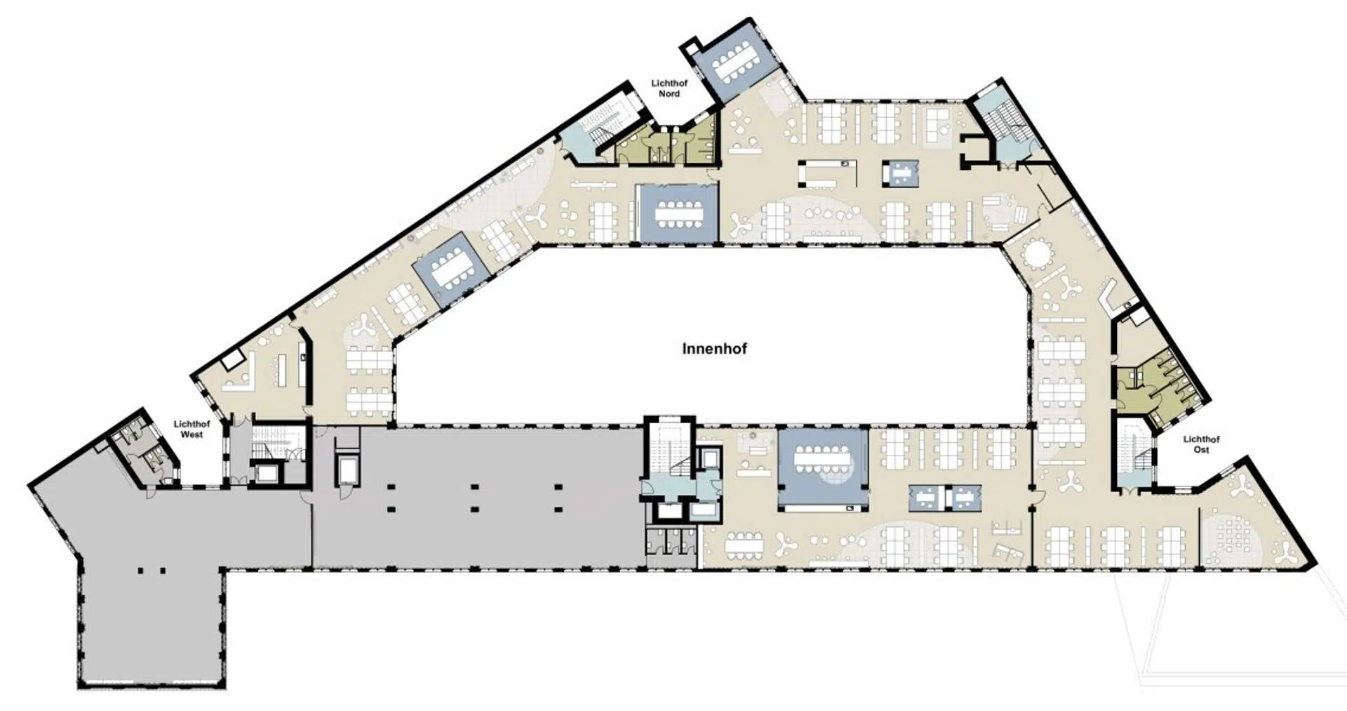
Bürofläche ca.2.449,43 m²
-
Mieterprovision (gewerblich)Provisionsfrei
-
Miete pro m²25,00 EUR
-
Nebenkosten3,90 EUR
Objektbeschreibung
Beschreibung
Die WÆSCHEFABRIK wird zur perfekt angebundenen Arbeitslandschaft im Zentrum der Hauptstadt. Ein inspirierendes Original, verortet inmitten einer abwechslungsreichen und sich dynamisch entwickelnden Umgebung – direkt an der neuen „kreativen Kante“ zwischen Tiergarten und Wedding im Bezirk Berlin-Mitte.
Ausstattung
FLÄCHEN Moderne Büroflächen im Industrieloft-Stil mit flexiblen Raumstrukturen
DACHTERRASSEN Dachterrasse mit Pergola sowie drei Balkone, ausgestattet mit Holzbodenbelag und Grundbeleuchtung
KÜHLUNG & BELÜFTUNG Gesundes Raumklima durch natürliche Belüftung Kühl- und Heizdecken für angenehmes Raumklima
BELEUCHTUNG Grundbeleuchtung im industriellem Design
FAHRRAD Prominente und sichere Fahrradabstellräume im UG für ca. 40 Fahrräder, Anfahrt über Rampe, Ausstattung mit Umkleide- und Duschbereich
SPACES Outside-Workplaces im Innenhof mit Bepflanzung, Sitzstufen
DATEN & IT Server/IT-Verteilerräume: Daten-Zuleitungen bis zum Auslass an den Steigleitungen vorgehalten
Zwei Glasfaseranschlüsse: LWL (Glasfaser)
BODENBELAG Hochwertiger Bodenbelag von Miliken mit akustischer Funktion
SANITÄR Modern und zeitgemäß ausgestattete Sanitärbereiche, barrierefreie WCs im EG sowie im 5. OG
AUTO 7 PKW-Stellplätze
TEEKÜCHEN eine Teeküche je Mieteinheit, hochwertige Elektrogeräte
DECKEN Eisenbetondecke (Fabrikloft-Decke)
FENSTER & SONNENSCHUTZ Außenliegender Sonnenschutz
Neue Dachgauben sowie Gaubenfenster und Holzfenster
ERSCHLIESSUNG Exklusive Lobby im EG mit zwei neuen barrierefreien Aufzügen sowie zwei exklusiven Treppenhäuser
OBJEKTSICHERHEIT Sicherheitslinie in RC3 im EG
Lage
unmittelbar zum Nettelbeckplatz
Reinickendorfer Straße, Pankstraße, Müllerstraße in Gesundbrunnen/ Wedding
Nahversorgung vor Ort
Banken, Einzelhandel sowie zahlreiche Gastronomische Einrichtungen
S- und U-Bahnhof Wedding (S41,S42,U6), Buslinien 247, M27
13347 Berlin, Berlin, Deutschland (auf Google Maps ansehen)










