Büroräume in Top Mitte-Lage!
10117 Berlin, Bürofläche zur Miete
Kontaktdaten
-
FirmaSRE GmbH
-
AnschriftGrunowstraße 2
13187 Berlin -
E-Mail
-
Telefon
Objektdaten
-
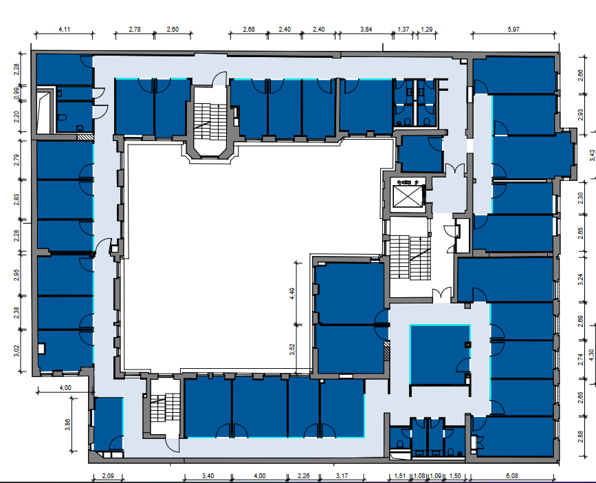
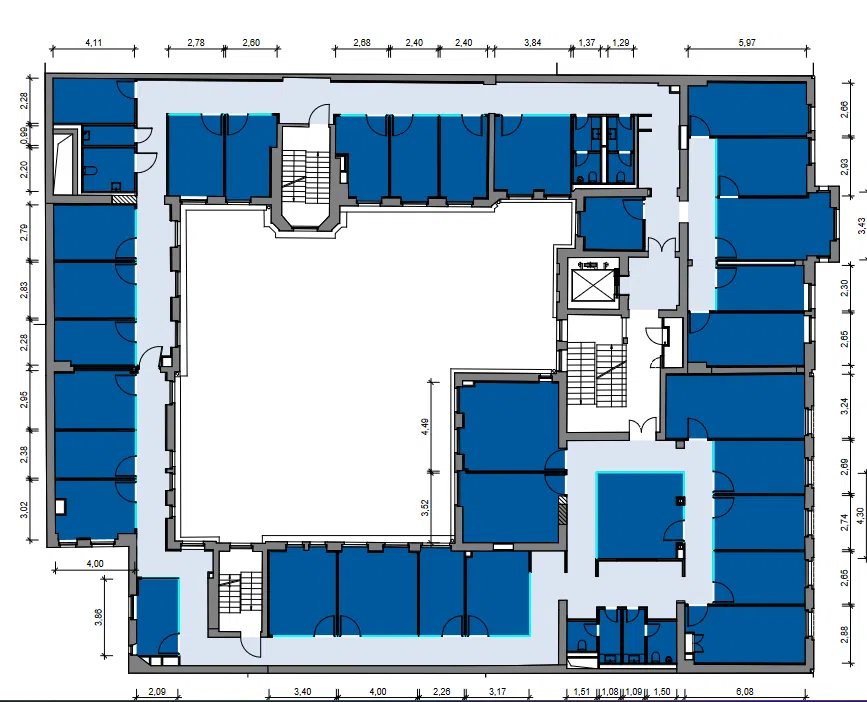
Objekt-ID301100-2.OG-711
-
ObjekttypenBüro/Praxis, Bürofläche
-
Adresse10117 Berlin
(City Ost - 1A - Mitte)
Berlin -
Etage2
-
Bürofläche ca.737,60 m²
-
Mieterprovision (gewerblich)Provisionsfrei
-
Miete pro m²26,50 EUR
-
Nebenkosten4,70 EUR
Objektbeschreibung
Beschreibung
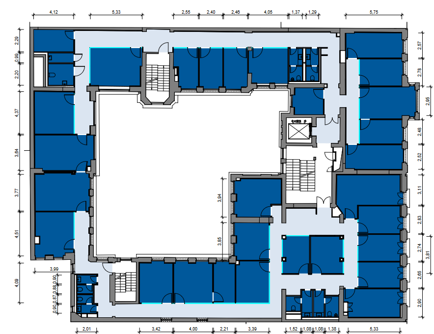
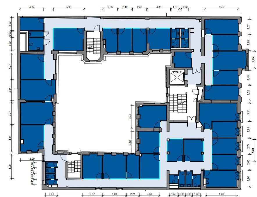
Der denkmalgeschützte Altbau wurde um 1888 erbaut und im Jahr 1994 liebevoll und aufwändig restauriert. Insgesamt kann das fünfgeschossige Büro- und Geschäftshaus in den vier Etagen 1. OG bis 4. OG eine Bürofläche von rd. 3.023,01 m², ermittelt nach der gif-Richtlinie, darstellen. Im 5.OG (Dachgeschoss) befinden sich zusätzlich zwei Wohnungen.
Ausstattung
Eine eigene Tiefgarage/PKW-Parkplatz existiert nicht. Der Stellplatz bedarf kann aber in der Tiefgarage eines benachbarten Gebäudes in der unmittelbaren Nachbarschaft gedeckt werden. Das Objekt ist voll unterkellert und bietet ausreichend Lagerflächen für die Büro- und Handelsmieter im vorderen straßenseitigen Bereich des Hauses.
- Repräsentativer Eingangsbereich
- Restaurierte Stuckaltbauelemente
- Zwei getrennte Aufzüge
- Terrassen / Balkone in unterschiedlichen Etagen
- In den Büroflächen hochwertiger Bodenbelag bzw. Parkett
- CAT7- Datenverkabelung
- Ausbau Mietbereiche mit modernen Teeküchen und Sanitäreinheiten
Sonstiges
Irrtum und Zwischenvermietung vorbehalten!
Lage
Erstklassige Lage am Gendarmenmarkt, nahe der Friedrichstraße
Townhouse-Viertel mit sehr hochwertigen City-Reihenhäusern; exklusiver Büro- und Wohnstandort
Attraktiver Medienstandort
U-Bahnhof Hausvogteiplatz (U2) fußläufig erreichbar
10117 Berlin, Berlin, Deutschland (auf Google Maps ansehen)











