Atemberaubender Blick auf Dom und Spree – Büro zur Untermiete in Mitte
10178 Berlin, Bürofläche zur Miete
Kontaktdaten
-
FirmaSRE GmbH
-
AnschriftGrunowstraße 2
13187 Berlin -
E-Mail
-
Telefon
Objektdaten
-
Objekt-ID348982-1.OG-692
-
ObjekttypenBüro/Praxis, Bürofläche
-
Adresse10178 Berlin
(City Ost - 1A - Mitte)
Berlin -
Etage1
-
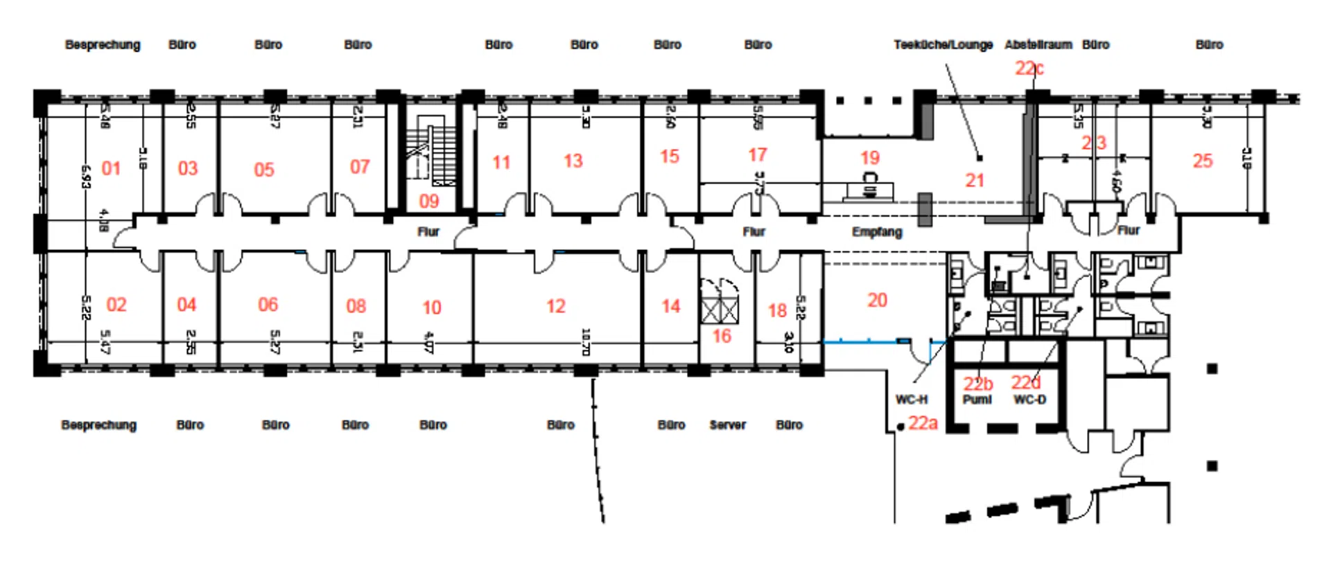
Bürofläche ca.691,62 m²
-
Mieterprovision (gewerblich)Provisionsfrei
-
Nebenkosten5,50 EUR
-
Preisauf Anfrage
Energieausweis
-
Energieausweiswird bei Besichtigung vorgelegt
Objektbeschreibung
Beschreibung
Im renommierten Spreepalais, sehr zentral gelegen direkt an der Spree in Berlin Mitte befindet sich diese attraktive Bürofläche von ca. 700 m² im 1. Obergeschoss zur Untermiete. Die Einheit bietet einen atemberaubenden Blick auf den Berliner Dom, die Museumsinsel und die idyllische Spree, was Ihren Mitarbeitenden und Gästen ein einzigartiges Arbeitsumfeld mit inspirierender Aussicht bietet.
Die offene und helle Bürofläche eignet sich ideal für Unternehmen, die eine zentrale Lage in Berlin schätzen und in einem repräsentativen Umfeld arbeiten möchten.
Die Mietlaufzeit als Untermieter ist möglich bis 30.6.2027. Bei Interesse kann auch die Übernahme der Mietfläche verbunden mit einer längeren Mietlaufzeit besprochen werden.
Es sind fünf Stellplätze verfügbar (ein Stellplatz mit Ladefunktion) für je 160 € / Monat / zzgl. 19 % (mit Ladefunktion 185 € zzgl. 20 €/Monat für das Ladegerät, zzgl. Verbrauch).
Ausstattung
Baujahr: 2002
Achsmaß: 1,35 m
Lichte Raumhöhe der Bürogeschosse: 2,95 m – 3,10 m
Raumtiefe: variabel 5,40 m – 5,80 m
Individuelle Anpassung des Raumklimas und der Beleuchtung in jeder Büroeinheit
Top-Cooling; zusätzliche Kühlleistung in Sonderbereichen möglich
Außenliegender Sonnen-/Blendschutz mit individueller Steuerung
Öffenbare Fenster in jeder Achse
Modernste IT-Grundausstattung und Gebäudeleittechnik
Flexibler Doppelboden
Im Gebäude befinden sich Restaurants und eine Bar. Ein repräsentatives, glasüberdachtes Atrium mit Meeting-Punkten und einem zentralen Empfang steht den Nutzern zur Verfügung.
Sonstiges
Irrtum und Zwischenvermietung vorbehalten!
Lage
Zwischen Hackescher Markt und Spreeinsel in Berlin-Mitte gelegen
Interessanter Mix aus Kultur, Politik, Wirtschaft und Mode am Standort
S-Bahnhof Hackescher Markt (S5, S7, S75, S9); Tramlinien M4, M5, M6, Buslinien 100, 200 fußläufig erreichbar
10178 Berlin, Berlin, Deutschland (auf Google Maps ansehen)


















