Büroflächen am Zoo zu vermieten
10789 Berlin, Bürofläche zur Miete
Kontaktdaten
-
FirmaSRE GmbH
-
AnschriftGrunowstraße 2
13187 Berlin -
E-Mail
-
Telefon
Objektdaten
-
Objekt-ID200284-3.OG-889
-
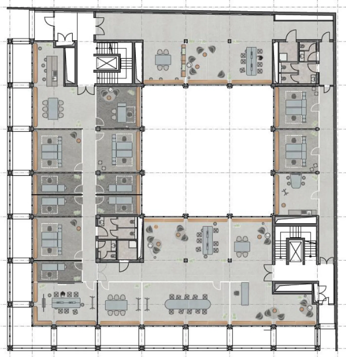
ObjekttypenBüro/Praxis, Bürofläche
-
Adresse10789 Berlin
(City-West - Tiergarten)
Berlin -
Etage3
-
Bürofläche ca.888,71 m²
-
Mieterprovision (gewerblich)Provisionsfrei
-
Miete pro m²35,00 EUR
-
Nebenkosten5,95 EUR
Objektbeschreibung
Beschreibung
Die Immobilie ist das sogenannte Salamanderhaus – auch bekannt als Adidas-Haus – und wurde in den Jahren 1990 bis 1992 nach einem Entwurf des Büros Gerkan, Marg und Partner (gmp) errichtet.
Der ursprüngliche Vorgängerbau aus den Anfangsjahren war ein Jugendstil-Geschäftshaus, entworfen um 1909–1910 von August Endell, aber dieser wurde abgerissen. Die aktuelle moderne Architektur zeichnet sich durch eine doppelschalige Fassade mitsamt in die Fassade integrierten Wintergärten und werbewirksamen Turmelementen an der Gebäudeecke aus. Im Jahr 2005 erfolgte ein Umbau und die Umnutzung zugunsten eines Adidas-Performance-Centers, bei dem u. a. die Glasfassade modifiziert wurde.
Sonstiges
Irrtum und Zwischenvermietung vorbehalten!
Lage
Eine moderne Glasfassade in prägnanter Ecklage. Namhafte Einzelhandelsmieter im Haus.
In direkter Nähe zur bekannten Gedächtniskirche befindet sich die Immobilie in einer Top-
Lage. Genießen Sie in der Mittagspause die Mischung aus Kultur, Geschichte und endlosen
Einkaufsmöglichkeiten. Die nahegelegenen ÖPNV Haltestellen bringen Sie schnell von A
nach B.
10789 Berlin, Berlin, Deutschland (auf Google Maps ansehen)

