Schöne Bürofläche am Potsdamer Platz
10785 Berlin, Bürofläche zur Miete
Kontaktdaten
-
FirmaSRE GmbH
-
AnschriftGrunowstraße 2
13187 Berlin -
E-Mail
-
Telefon
Objektdaten
-
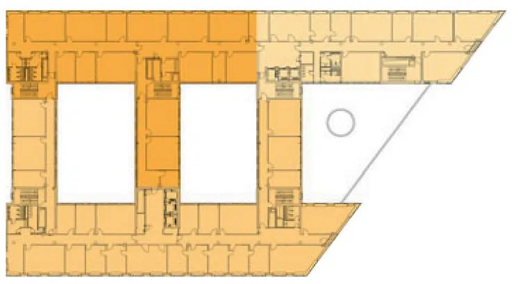
Objekt-ID15182-8.OG-733
-
ObjekttypenBüro/Praxis, Bürofläche
-
Adresse10785 Berlin
(City Ost - Potsdamer Platz / Leipziger Platz)
Berlin -
Etage8
-
Bürofläche ca.732,98 m²
-
Mieterprovision (gewerblich)Provisionsfrei
-
Miete pro m²29,00 EUR
-
Nebenkosten6,00 EUR
Objektbeschreibung
Beschreibung
Die Immobilie ist ein modernes, achtgeschossiges Bürogebäude mit großzügiger Empfangshalle und Concierge-Service. Die Fassade besticht durch eine Lochstruktur in Keramik- und Glaselementen. Innen erwarten Mieter Kühldecken, Doppel-Hohlraumböden, innenliegenden Sonnenschutz sowie ein durchdachtes Tageslicht-Beleuchtungskonzept. Technisch ist das Objekt mit Fernwärme und Fernkälte versorgt; eine öffentliche Tiefgarage befindet sich unter dem gesamten Areal.
Ausstattung
Baujahr: 1998
Sanierung: 2008
Besetzter Empfang: ja, mit Concierge
Wachschutz / Sicherheit: ja
Personenaufzug/ Anzahl: ja
Öffenbare Fenster: ja
Deckenart: Abhangdecken
Bodenbelag: in Absprache auf Mieterwunsch
Sonnenschutz: innenliegend
Blendschutz: Mietersache
Beleuchtung: Beleuchtung mit Tageslichtkonzept
Kabelführung: Doppel-Hohlraumboden
Küche: Teeküche
Sanitärbereich: getrennte Sanitäreinheiten
Klimatisierung: Kühldecken
Barrierefrei: barrierearm
Pkw – Stellplätze: in der Tiefgarage; Anmietung über das Quartiersmanagement der PPMG
Fahrrad – Stellplätze: ja
Umsatzsteuerfreie Anmietung: ja, auf Anfrage
Sonstiges
Irrtum und Zwischenvermietung vorbehalten!
Lage
Im Quartier Potsdamer Platz gelegen, fußläufig zum S- und U-Bahnhof
Shopping, Kultur, Hotels, Bundesrat
Nahversorgung vielfältig im Umfeld vorhanden
U-Bahnhof Mendelssohn-Bartholdy-Park (U2), Bus M29
10785 Berlin, Berlin, Deutschland (auf Google Maps ansehen)

