Bürofläche mit hervorragender Verkehrsanbindung zu vermieten
10179 Berlin, Bürofläche zur Miete
Kontaktdaten
-
FirmaSRE GmbH
-
AnschriftGrunowstraße 2
13187 Berlin -
E-Mail
-
Telefon
Objektdaten
-
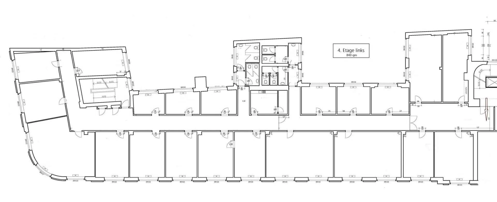
Objekt-ID333736-3.OG-840
-
ObjekttypenBüro/Praxis, Bürofläche
-
Adresse10179 Berlin
(City Ost - Mitte)
Berlin -
Etage3
-
Bürofläche ca.840 m²
-
Mieterprovision (gewerblich)Provisionsfrei
-
Miete pro m²20,00 EUR
-
Nebenkosten3,00 EUR
Objektbeschreibung
Beschreibung
Die Gesamtfläche von 840 m² umfasst 21 Büroräume und zeichnet sich durch eine moderne Ausstattung aus. Eine Küche sowie hochwertig renovierte Bäder sind ebenfalls Teil des Objekts.
Ausstattung
- Hauseigene Kantine für Mitarbeiter und die Möglichkeit, für Firmenevents gemietet zu werden
- Concierge-Service für eine reibungslose Arbeitsumgebung
- Videoüberwachter Parkplatz mit E-Auto-Lademöglichkeiten für umweltbewusste Mobilität
Sonstiges
Irrtum und Zwischenvermietung vorbehalten!
Lage
Die Immobilie befindet sich in zentraler Lage in Berlin und ist gut mit öffentlichen Verkehrsmitteln erreichbar, einschließlich U-Bahn, S-Bahn und Bus. In unmittelbarer Nähe gibt es zahlreiche Einkaufsmöglichkeiten, darunter Supermärkte und kleinere Geschäfte. Die bekannten Straßen in der Umgebung sind die Leipziger Straße und die Köpenicker Straße.
10179 Berlin, Berlin, Deutschland (auf Google Maps ansehen)


