Büro in historischem Ambiente
10117 Berlin, Bürofläche zur Miete
Kontaktdaten
-
FirmaSRE GmbH
-
AnschriftGrunowstraße 2
13187 Berlin -
E-Mail
-
Telefon
Objektdaten
-
Objekt-ID14668-VH-4.OG-468
-
ObjekttypenBüro/Praxis, Bürofläche
-
AdresseFriedrichstraße 101
10117 Berlin
(City Ost - 1A - Mitte)
Berlin -
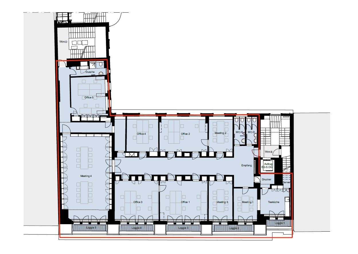
Etage4
-
Bürofläche ca.468 m²
-
Mieterprovision (gewerblich)Provisionsfrei
-
Miete pro m²28,00 EUR
-
Nebenkosten6,50 EUR
Objektbeschreibung
Beschreibung
Der Admiralspalast ist ein traditionsreicher Veranstaltungsort in Berlin Mitte. Er zählt zu den wenigen erhaltenen großen Vergnügungsstätten von den Anfängen des 20. Jahrhunderts in Berlin. 2006 wurde das Theater in dem denkmalgeschützten Gebäude nach umfangreichen Sanierungs- und Umbauarbeiten wiedereröffnet.
In 2022 / 2023 wurde das Objekt rückwärtig mit einem Büroneubau erweitert und die u.a. historischen Bäder im Altbau saniert und in Büros umfunktioniert.
Ausstattung
Baujahr: 1911, 1930, denkmalgeschützt
Sanierung: 2006, 2021
Wachschutz / Sicherheit: Video- und Türsprechgegenanlage
Personenaufzug/ Anzahl. ja
Öffenbare Fenster: ja
Wände: Naturstein, Beton, Stahl, Keramik
Bodenbelag: Parkett, Teppich oder Estrich
Dusche: nein
Beleuchtung. ja
Kabelführung: Bodenkanäle
Strukturierte Verkabelung: CAT-7
Küche: Teeküche
Sanitärbereich: getrennte WC-Einheiten
Klimatisierung: vollklimatisiert
Barrierefrei: ja
Umsatzsteuerfreie Anmietung: auf Anfrage
Terrasse: 2., 4. und 6. OG, Balkone zum Atrium im 2. – 6. OG
Sonstiges
Irrtum und Zwischenvermietung vorbehalten!
Lage
Fußläufig zum Spreeufer und Regierungsviertel
Reinhardstraße, Unter den Linden, Hackescher Markt, Französische Straße
Hauptbahnhof ist ca. 15 Gehminuten entfernt
Bahnhof Friedrichstraße mit S- und U-Bahn, Bus- und Tramlinien und Regionalverkehr
Friedrichstraße 101, 10117 Berlin, Berlin, Deutschland (auf Google Maps ansehen)




