Mega Büroloft in Kreuzberg
10999 Berlin, Bürofläche zur Miete
Kontaktdaten
-
FirmaSRE GmbH
-
AnschriftGrunowstraße 2
13187 Berlin -
E-Mail
-
Telefon
Objektdaten
-
Objekt-ID216553-Gesamtfläche
-
ObjekttypenBüro/Praxis, Bürofläche
-
Adresse10999 Berlin
(City Ost - Kreuzberg)
Berlin -
Etage2
-
Bürofläche ca.636 m²
-
Mieterprovision (gewerblich)Provisionsfrei
-
Miete pro m²18,00 EUR
-
Nebenkosten4,60 EUR
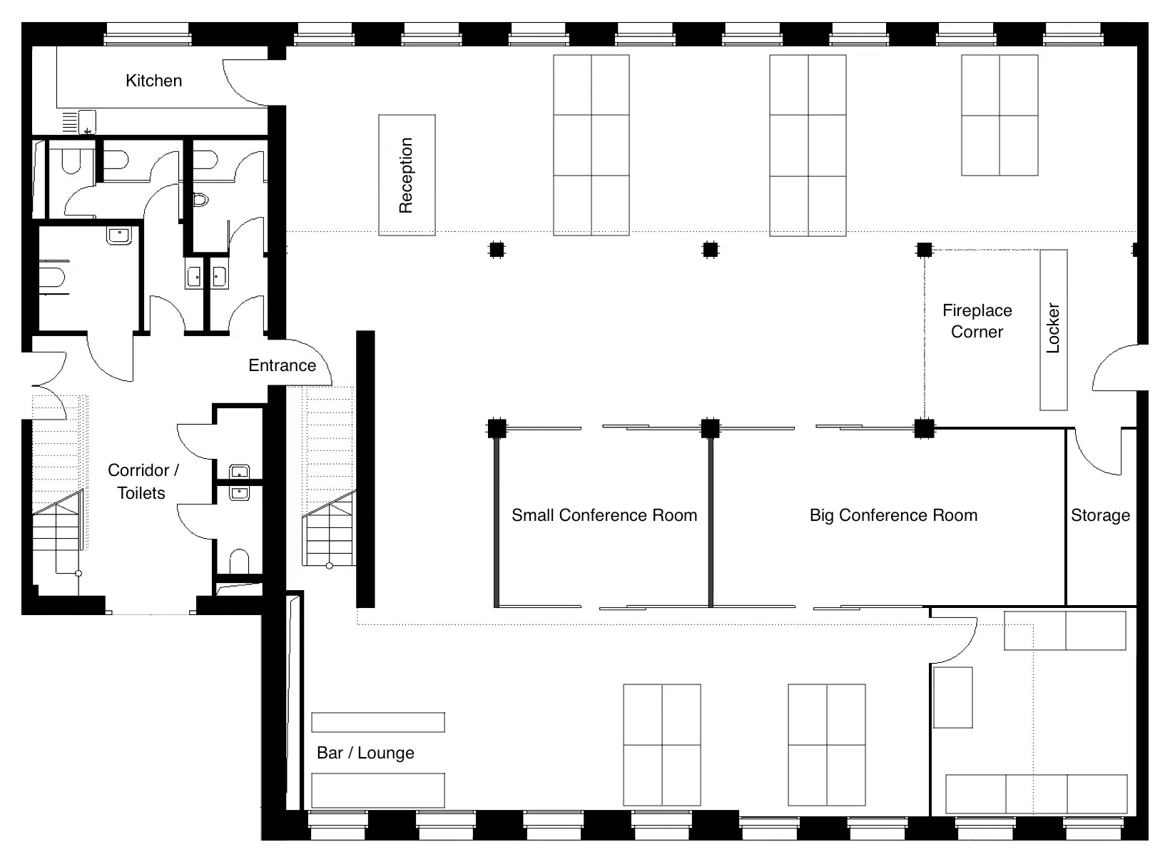
Objektbeschreibung
Beschreibung
Die Immobilie wurde zwischen 1926 und 1928 nach Plänen des Architekten Hans Heinrich Müller errichtet. Als ehemaliges Umspannwerk der Berliner Städtischen Elektrizitätswerke AG (BEWAG) diente sie der Stromversorgung des südöstlichen Berliner Stadtgebiets. Der monumentale Klinkerbau im Stil der Neuen Sachlichkeit mit expressionistischen Elementen wurde aufgrund seiner sakral anmutenden Architektur auch als „Kathedrale der Elektrizität“ bezeichnet.
Es handelt sich um eine Untermietfläche. Mietlaufzeit bis Ende 2027.
Ausstattung
- 24/7 Zugang
- Nischen (z. B. Kaminplatz, Bar) für zB Networking und Meetings
- Bodenanschlüsse für Strom und LAN und Kabelkanäle sind in den hochwertigen Parkettboden integriert
- Küche voll ausgestattet u. a. Ofen, Herd, Kühlschränken, Siebträger-Kaffeemaschine, Mikrowelle und Geschirr
- Zwei Konferenzräume mit Beamer bzw. TV, WLAN und LAN, Multifunktionsdrucker, Whiteboards und Empfangsbereich
- Inkl. Kaffee, Tee und Mineralwasser und Schließfächer (1 je Platz) sowie Strom, Sicherheits- und Reinigungsdienst
- "Napping Room", "Living Room", Dartscheibe, ein Billardtisch und eine Bartheke sowie eine "Candy-Wall"
Sonstiges
Irrtum und Zwischenvermietung vorbehalten!
Lage
In Kreuzberg am Landwehrkanal, an der Grenze zu Neukölln
Ehem. BEWAG-Umspannwerk
Kiezlage inmitten von Wohnbebauung, Cafés und Dienstleistungen
U-Bahnhöfe Schönleinstraße (U8) und Görlitzer Park (U1, U3), Buslinie M29
10999 Berlin, Berlin, Deutschland (auf Google Maps ansehen)





















