Büroflächen nahe Nordbahnhof
10115 Berlin, Bürofläche zur Miete
Kontaktdaten
-
FirmaSRE GmbH
-
AnschriftGrunowstraße 2
13187 Berlin -
E-Mail
-
Telefon
Objektdaten
-
Objekt-ID44954-1.OG-HH-246
-
ObjekttypenBüro/Praxis, Bürofläche
-
Adresse10115 Berlin
(City Ost - Mitte)
Berlin -
Etage1
-
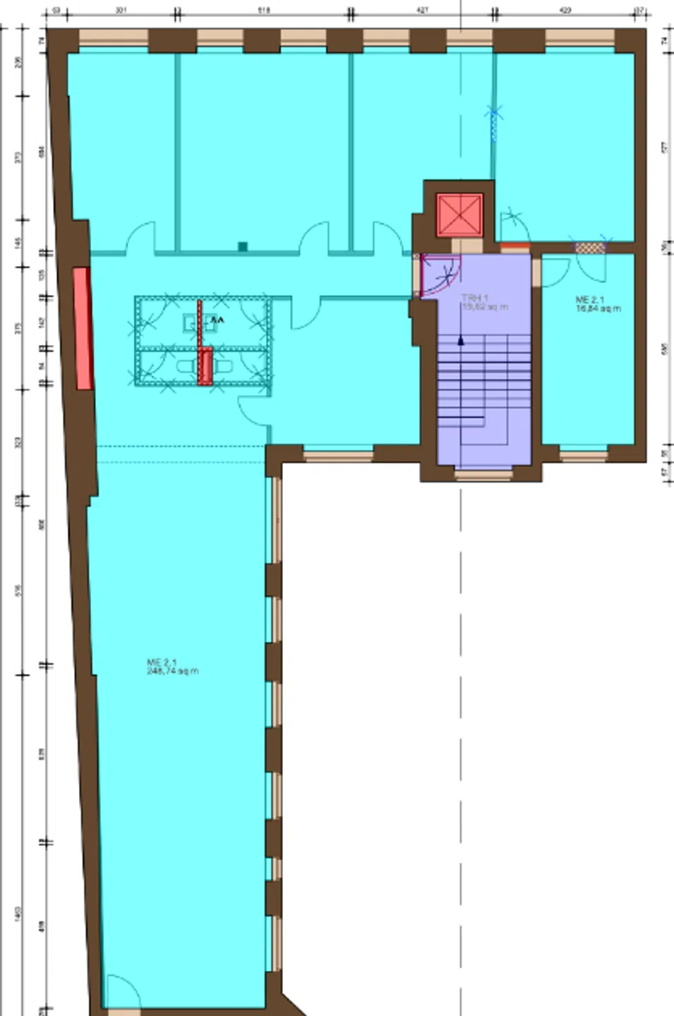
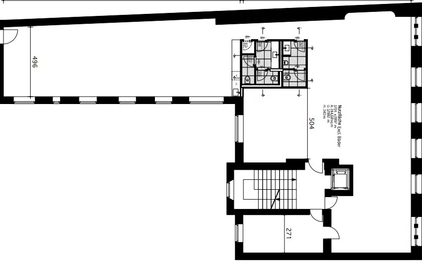
Bürofläche ca.245,72 m²
-
Mieterprovision (gewerblich)Provisionsfrei
-
Nebenkosten4,60 EUR
-
Preisauf Anfrage
Objektbeschreibung
Beschreibung
Die Immobilie befindet sich in einem historischen Gebäude, das 1912 als Hotel Danziger Hof errichtet wurde . In den 1930er Jahren erhielt es den Namen Hotel Nordland und blieb im Zweiten Weltkrieg weitgehend unversehrt . Nach Kriegsende übernahm die Rote Armee das Haus und richtete hier eine Zweigstelle des sowjetischen Reisebüros Intourist ein, bekannt als Hotel Newa, mit gehobener Gastronomie, einer Bar und etwa 100 Originalgemälden in den Gästezimmern. In den frühen 1980er Jahren ging das Gebäude zurück an die DDR, später an die SED-Holding Zentrag, bevor es nach der Wende von einem Investor übernommen, denkmalgerecht saniert und als Bürohaus umgenutzt wurde – heute bekannt unter dem Namen Home Hotel Newa GmbH Büro‑Hotel‑Service.
Ausstattung
Baujahr1912
Sanierung2022
Besetzter Empfangnein
Wachschutz / SicherheitAlarmanlage
Personenaufzug / Anzahlja
Lastenaufzugnein
Öffenbare Fensterja
Wändeverputzt
DeckenartBeton
BodenbelagEpoxidharzboden
Duscheja
BeleuchtungGrundbeleuchtung
KabelführungBrüstungskanäle
Strukturierte Verkabelungvorhanden
KücheTeeküche
Sanitärbereichgetrennte Sanitäreinheiten
Klimatisierungnein
Barrierefreinein
Pkw – Stellplätzeauf Anfrage
Fahrrad – Stellplätzeja
Umsatzsteuerfreie Anmietungauf Anfrage
Sonstiges
Irrtum und Zwischenvermietung vorbehalten!
Lage
Nähe Regierungsviertel und Heidestraße/Hauptbahnhof, Charité Campus Mitte
Torstraße, Oranienburger Straße, Chausseestraße
Nahversorgung vor Ort
U-Bhf. Naturkundemuseum (U6)
Tramlinie M10,M8,M5
S-Bhf. Nordbahnhof ca. 5 Gehminuten entfernt
10115 Berlin, Berlin, Deutschland (auf Google Maps ansehen)




