Büro zwischen Landsberger Allee und Frankfurter Allee
10367 Berlin, Bürofläche zur Miete
Kontaktdaten
-
FirmaSRE GmbH
-
AnschriftGrunowstraße 2
13187 Berlin -
E-Mail
-
Telefon
Objektdaten
-
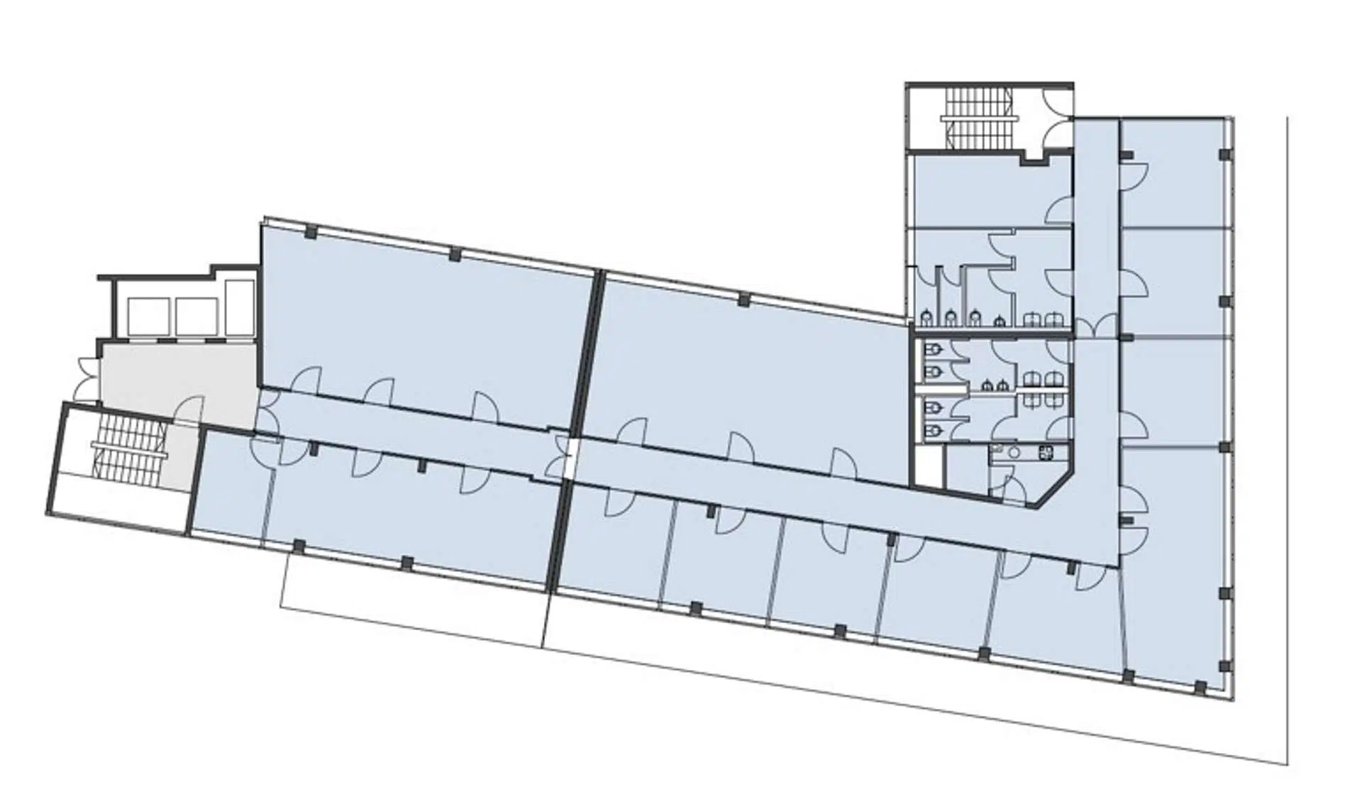
Objekt-ID14610-BT40-5.OG-650
-
ObjekttypenBüro/Praxis, Bürofläche
-
Adresse10367 Berlin
(Ost - Lichtenberg)
Berlin -
Etage5
-
Bürofläche ca.650,34 m²
-
Mieterprovision (gewerblich)Provisionsfrei
-
Miete pro m²13,90 EUR
-
Nebenkosten3,70 EUR
Objektbeschreibung
Beschreibung
Irrtum und Zwischenvermietung vorbehalten!
Ausstattung
Baujahr: 1993 – 1998
Besetzter Empfang: nein
Wachschutz: ja
Personenaufzug/ Anzahl: ja
Lastenaufzug: nein
Öffenbare Fenster: ja
Wände: Gipskartonständerwände
Deckenart: Abgehangen
Bodenbelag: Teppichboden
Dusche: nein / optional
Beleuchtung: ja
Kabelführung: Bodentanks
Strukturierte Verkabelung: Mietersache
Küche: Teeküche
Sanitärbereich: getrennte WC-Einheiten
Klimatisierung: nein
Barrierefrei: ja
Pkw – Stellplätze: ja, Tiefgarage, auf Anfrage verfügbar
Fahrrad – Stellplätze: ja
Umsatzsteuerfreie Anmietung: auf Anfrage
Terrasse: ja, teilweise
Sonstiges
Irrtum und Zwischenvermietung vorbehalten!
Lage
Ecke Josef-Orlopp-Straße, Storkower Straße
umgeben von der Herzbergstraße, Frankfurter Allee, Landsberger Allee, Weißenseer Weg
Nahversorgung vor Ort
Tramlinien 16,21,M13, Buslinie 240,
S-Bhf. Storkower Straße (ca. 2 Min.Fahrminuten) (S41,S42, S8,S85) und S- und U-Bhf. Frankfurter Allee ca. 5 Fahrminuten entfernt
10367 Berlin, Berlin, Deutschland (auf Google Maps ansehen)
