Industrieloft mit stylishen Büroräumen
10559 Berlin, Büro/Praxis zur Miete
Kontaktdaten
-
FirmaSRE GmbH
-
AnschriftGrunowstraße 2
13187 Berlin -
E-Mail
-
Telefon
Objektdaten
-
Objekt-ID302221-1.OG-842
-
ObjekttypBüro/Praxis
-
Adresse10559 Berlin
(City-West - Tiergarten)
Berlin -
Etage1
-
Bürofläche ca.842 m²
-
Mieterprovision (gewerblich)Provisionsfrei
-
Miete pro m²29,00 EUR
-
Nebenkosten4,00 EUR
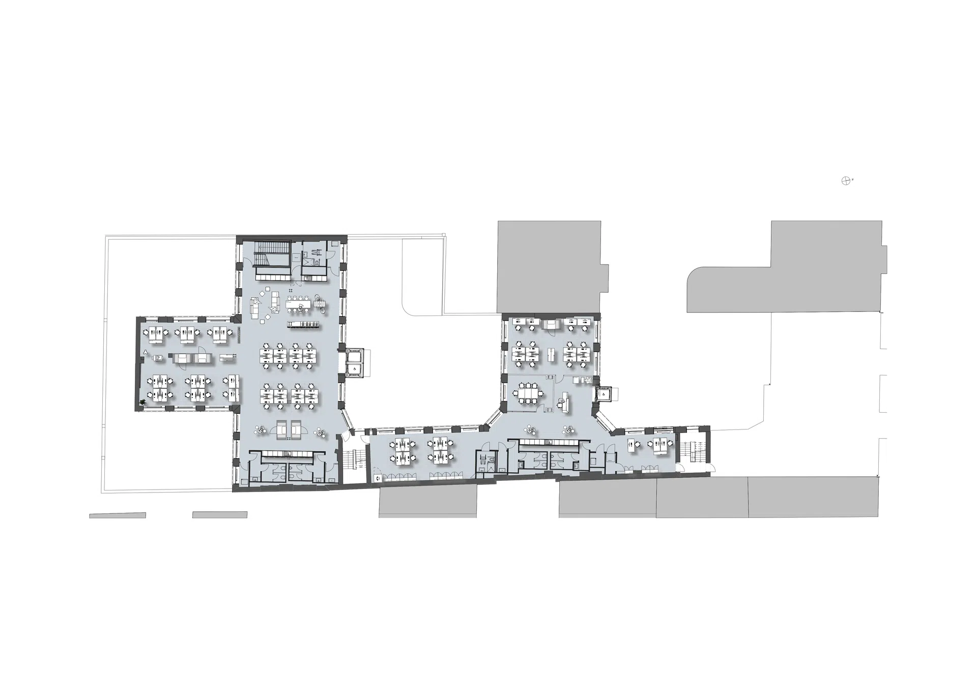
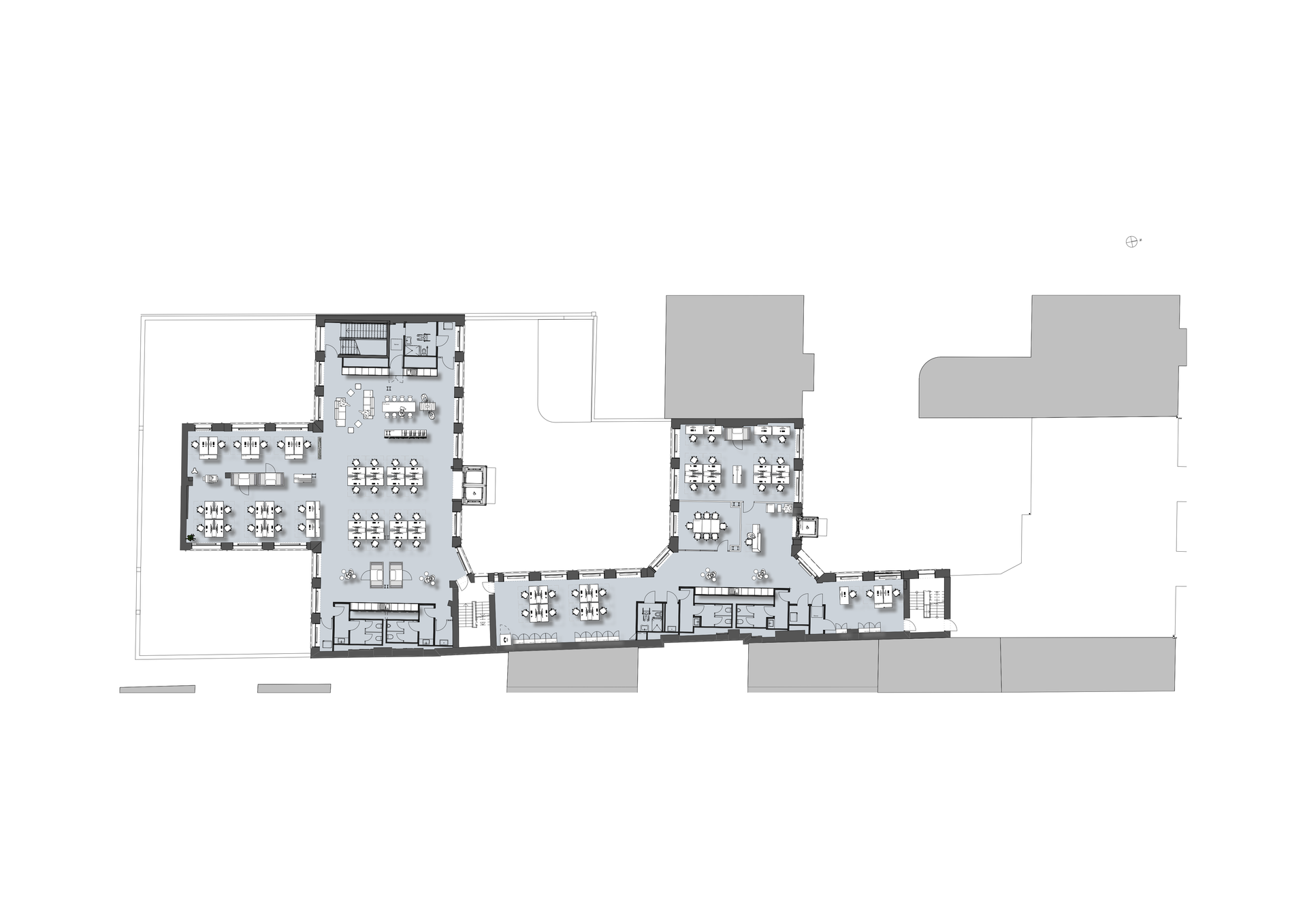
Objektbeschreibung
Beschreibung
- Zentraler Empfang
- Öffentliche Gastronomie
- Zugang zu den Höfen
MUSTERBELEGUNG:
- ca. 65 Arbeitsplätze je Geschoss
- ca. 12 m² pro Arbeitsplatz
Ausstattung
Deckenart: Kappendecken & Stahlstützen
Sonnenschutz: außenliegend, Richtung Süden
Kabelführung: Hohlraumboden
Küche: mind. eine Küchenzeile je Fläche
Lichte Raumhöhe ca.: 3,10 m – 3,40 m
Barrierefrei: ja
Pkw – Stellplätze: 16
Fahrrad – Stellplätze: 63
Terrasse: 3 Höfe zur gemeinsamen oder exklusiven Nutzung
Sonstiges
Irrtum und Zwischenvermietung vorbehalten!
Lage
Mitten in Tiergarten / Moabit, am Rande des Kleinen Tiergartens
Benachbart zum ehemaligen Standort des Bundesministerium des Inneren
Wenige Fahrminuten zum Hauptbahnhof
U-Bahnhof Turmstraße (U9), Buslinien 187, 245
10559 Berlin, Berlin, Deutschland (auf Google Maps ansehen)








