Ihr neues Büro am Gleisdreieck
10785 Berlin, Bürofläche zur Miete
Kontaktdaten
-
FirmaSRE GmbH
-
AnschriftGrunowstraße 2
13187 Berlin -
E-Mail
-
Telefon
Objektdaten
-
Objekt-ID14717-5.OG-1211
-
ObjekttypenBüro/Praxis, Bürofläche
-
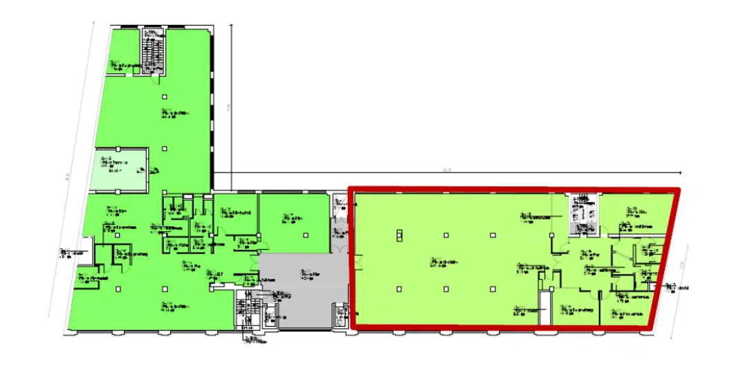
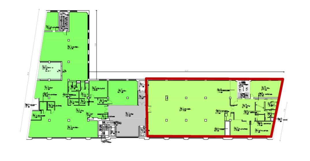
Adresse10785 Berlin
(City-West - Schöneberg)
Berlin -
Etage5
-
Bürofläche ca.1.211 m²
-
Mieterprovision (gewerblich)Provisionsfrei
-
Miete pro m²10,00 EUR
-
Nebenkosten5,00 EUR
Objektbeschreibung
Beschreibung
Die Immobilie präsentiert sich als modernes Bürogebäude, errichtet im Jahr 1995 und verfügt über eine vermietbare Fläche von etwa 7 800 m². Sie befindet sich in einem etablierten Gewerbeviertel südlich des Potsdamer Platzes im Bezirk Tiergarten‑Mitte.
Kurzlaufverträge 1–3 Jahre möglich, Übergabe der Mietflächen im aktuellen Zustand, ohne Incentives= 10 €/m²
Laufzeit >5 Jahre: marktübliche Miete und Ausbau der Flächen durch Vermieter= 30 €/m²
Ausstattung
Baujahr: 1994
Sanierung: 2016
Personenaufzug / Anzahl: ja, 2 Stück
Lastenaufzug: ja
Öffenbare Fenster: ja
Deckenart: Akustikdecke
Bodenbelag: Teppichboden
Sonnenschutz: außenliegend, elektrisch
Beleuchtung: Pendelleuchten
Kabelführung: Glasfaseranschluss, Bodentanks
Strukturierte Verkabelung: CAT 7
Küche: Teeküche
Sanitärbereich: getrennte Sanitäreinheiten
Lichte Raumhöhe ca.: 2,88 m – 3,22 m
Klimatisierung: nein
Barrierefrei: ja
Pkw – Stellplätze: ca. 120 Stk. im Objekt vorhanden, 160 €/Platz/mtl.
Sonstiges
Irrtum und Zwischenvermietung vorbehalten!
Lage
unweit vom Park am Gleisdreieck, Nollendorfplatz, Kurfürstenstraße
Kleistpark, Yorckstraße, Schöneberger Ufer, Potsdamer Platz
Nahversorgung vor Ort
U-Bhf. Bülowstraße (U2) direkt am Objekt, U-Bhf. Kurfürstenstr. (U1,U3), Buslinien M19,M45,M85
10785 Berlin, Berlin, Deutschland (auf Google Maps ansehen)





