Büros am Moritzplatz
10969 Berlin, Bürofläche zur Miete
Kontaktdaten
-
FirmaSRE GmbH
-
AnschriftGrunowstraße 2
13187 Berlin -
E-Mail
-
Telefon
Objektdaten
-
Objekt-ID302716-3.OG-863
-
ObjekttypenBüro/Praxis, Bürofläche
-
Adresse10969 Berlin
(City Ost - Kreuzberg)
Berlin -
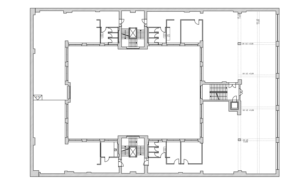
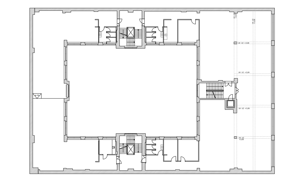
Etage3
-
Bürofläche ca.863 m²
-
Mieterprovision (gewerblich)Provisionsfrei
-
Miete pro m²27,50 EUR
-
Nebenkosten4,50 EUR
Objektbeschreibung
Beschreibung
Das Pelikan-Haus ist ein über 120 Jahre alter Gewerbehof aus der Gründerzeit, der die industrielle und kommerzielle Geschichte Kreuzbergs widerspiegelt. Der markante Pelikan-Schriftzug erinnert an seine Zeit als Sitz des bekannten Schreibwarenherstellers.
Das Gebäude steht unter Denkmalschutz. Vor der umfassenden Modernisierung seit 2025 hat die Berliner Brillenmanufaktur MYKITA das Hauses als Design-, Produktions- und Bürostandort.
Ausstattung
- Flächendeckende Kühlung
- HighSpeed-Glasfaserkabel in jede Etage
- Cat-7-Verkabelung auf Industrietrassen
- LED-Beleuchtung
- Hauseigene PV-Anlage auf dem Dach
- Anschluss an das Berliner Fernwärmenetz
- Hocheffiziente Eisspeicher-Kälteanlage
- BREEAM Pre-Check „Exzellent“ (in Bearbeitung)
- Lichte Deckenhöhe bis zu 4,40 m
- Industrieparkett
- Zwei Teeküchen pro Etage
- Zwei Erschließungskerne mit historischen Aufzügen und Treppenhäusern
- Lagerflächen im UG
- Neugestalteter Innenhof mit hoher Aufenthaltsqualität
- Fahrradstellplätze
Sonstiges
Irrtum und Zwischenvermietung vorbehalten!
Lage
-Zentrale Lage in Berlin-Kreuzberg nahe Moritzplatz
-U-Bahnhof Moritzplatz (U8) fußläufig ca. 5 Minuten
-U-Bahnhof Kottbusser Tor (U1, U3, U8) ca. 10 Minuten
-Sehr gute Anbindung an Berlin-Mitte, Alexanderplatz und Hauptbahnhof
-Urbanes Umfeld mit Gastronomie, Einzelhandel und kreativer Szene in unmittelbarer Nähe
10969 Berlin, Berlin, Deutschland (auf Google Maps ansehen)














