Büroflächen nahe Gendarmenmarkt
10117 Berlin, Bürofläche zur Miete
Kontaktdaten
-
FirmaSRE GmbH
-
AnschriftGrunowstraße 2
13187 Berlin -
E-Mail
-
Telefon
Objektdaten
-
Objekt-ID19181-1.OG-850
-
ObjekttypenBüro/Praxis, Bürofläche
-
Adresse10117 Berlin
(City Ost - 1A - Mitte)
Berlin -
Etage1
-
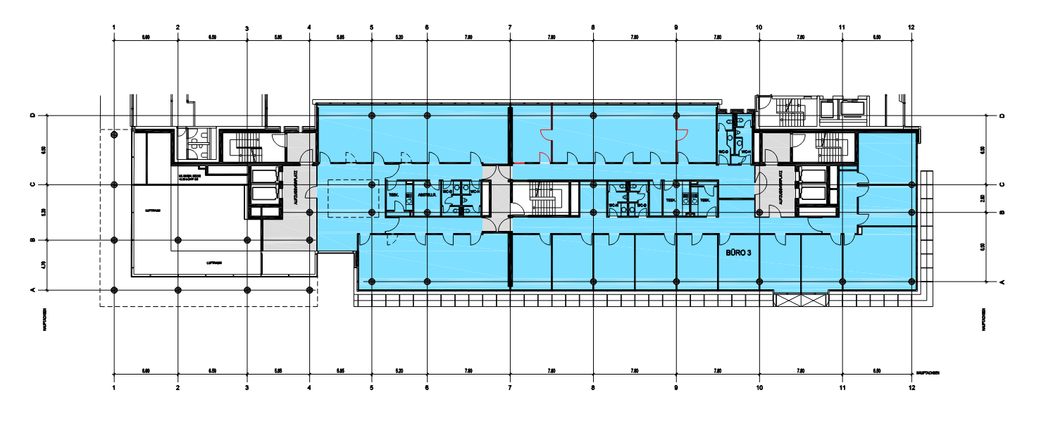
Bürofläche ca.850 m²
-
Mieterprovision (gewerblich)Provisionsfrei
-
Miete pro m²28,00 EUR
-
Nebenkosten5,90 EUR
Objektbeschreibung
Beschreibung
Das Quartier 30 ist ein moderner Wohn- und Geschäftskomplex in erstklassiger Innenstadtlage von Berlin-Mitte, unweit des Gendarmenmarkt. Das Ensemble umfasst mehrere Gebäude mit insgesamt ca. 30.000 m² Nutzfläche und vereint Wohnen, Büro sowie Gewerbe in einem hochwertigen städtebaulichen Kontext.
Errichtet um 2000 im Zuge der innerstädtischen Neubebauung nach der Wiedervereinigung, fügt sich das Quartier architektonisch in die historische Blockstruktur der Friedrichstadt ein. Eine Tiefgarage mit umfangreichen Stellplätzen ergänzt das Angebot.
Die Fläche ist teilbar in 368 m², 186 m² und 296 m²
Ausstattung
Zentrale Innenstadtlage in Berlin-Mitte, nahe Gendarmenmarkt
Fußläufig zu Unter den Linden und Checkpoint Charlie
Hochwertiges Umfeld mit Büros, Hotels, Gastronomie und Einzelhandel
U-Bahnhof Hausvogteiplatz (U2) – ca. 3 Gehminuten
U-Bahnhof Stadtmitte (U2, U6) – ca. 5 Gehminuten
U-Bahnhof Mohrenstraße – ca. 5 Gehminuten
Buslinien entlang Friedrichstraße und Leipziger Straße
S-Bahn Bahnhof Friedrichstraße (S1, S2, S25, S26, S3, S5, S7, S9) – ca. 10 Gehminuten
Sonstiges
Irrtum und Zwischenvermietung vorbehalten!
Lage
Zentrale Innenstadtlage in Berlin-Mitte, nahe Gendarmenmarkt
Fußläufig zu Unter den Linden und Checkpoint Charlie
Hochwertiges Umfeld mit Büros, Hotels, Gastronomie und Einzelhandel
U-Bahnhof Hausvogteiplatz (U2) – ca. 3 Gehminuten
U-Bahnhof Stadtmitte (U2, U6) – ca. 5 Gehminuten
U-Bahnhof Mohrenstraße – ca. 5 Gehminuten
Buslinien entlang Friedrichstraße und Leipziger Straße
S-Bahn Bahnhof Friedrichstraße (S1, S2, S25, S26, S3, S5, S7, S9) – ca. 10 Gehminuten
10117 Berlin, Berlin, Deutschland (auf Google Maps ansehen)

