Büroflächen an der Spree in Tiergarten
10555 Berlin, Bürofläche zur Miete
Kontaktdaten
-
FirmaSRE GmbH
-
AnschriftGrunowstraße 2
13187 Berlin -
E-Mail
-
Telefon
Objektdaten
-
Objekt-ID15407-ME5-Loft-5.OG-428
-
ObjekttypenBüro/Praxis, Bürofläche
-
AdresseAlt-Moabit 62-63
10555 Berlin
(City-West - Tiergarten)
Berlin -
Etage5
-
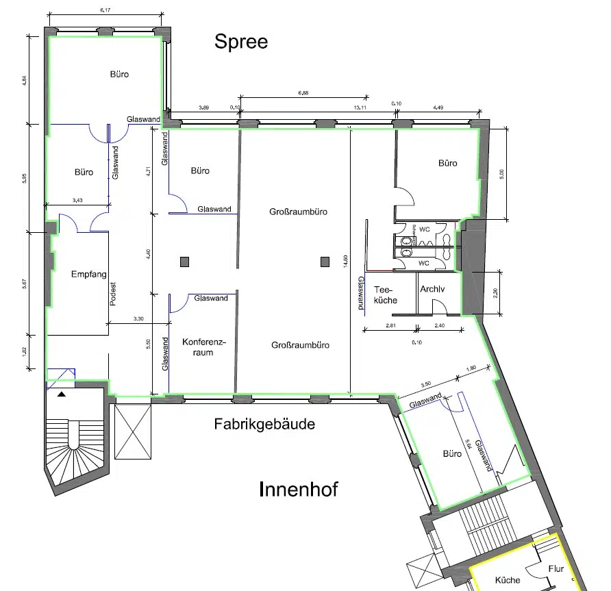
Bürofläche ca.428 m²
-
Mieterprovision (gewerblich)Provisionsfrei
-
Miete pro m²14,50 EUR
-
Nebenkosten3,50 EUR
Objektbeschreibung
Beschreibung
Das Gebäude wurde 1910 erbaut. Das Gebäude ist architektonisch interessant, da es aus der Kaiserzeit stammt und typische Merkmale der damals verwendeten Baustile aufweist. Es kombiniert neoklassizistische Elemente mit funktionalem Design, das für öffentliche Verwaltungsgebäude dieser Zeit typisch war. Auch heute beherbergt das schöne Gebäude Büros und Praxen.
Ausstattung
Baujahr: 1910
Sanierung: 1996
Besetzter Empfang: Hausmeisterservice
Personenaufzug/ Anzahl: ja
Lastenaufzug: nein
Öffenbare Fenster: Öffenbare Aluminiumfenster
Wände: Stein / Gipskartonständerwände
Deckenart: Beton
Deckenhöhe: bis circa 3,45 m
Bodenbelag: Textil- bzw. Fertigparkett in den Büroräumen
Sonnenschutz: ja, innenliegend
Blendschutz: ja
Dusche: optional
Beleuchtung: Deckenbeleuchtung; BAP
Kabelführung: Kabelkanäle
Strukturierte Verkabelung: EDV-Verkabelung, KAT-7
Küche: ja
Sanitärbereich: Getrennte Sanitäreinheiten
Klimatisierung: teilweise Kühldecken
Barrierefrei: teilweise
Pkw – Stellplätze: ja, auf Anfrage
Fahrrad – Stellplätze: ja im Hof
Umsatzsteuerfreie Anmietung: auf Anfrage
Terrasse: teilweise
Sonstiges
Irrtum und Zwischenvermietung vorbehalten!
Lage
Der historische Gewerbehof befindet sich nahe der Gotzkowskybrücke, südwestlich von der Turmstraße, direkt an der Spree
Im Umfeld gibt es ein zahlreiches Angebot an Cafés und Restaurants
Die U-Bahnstation Turmstraße (U9) ist fußläufig erreichbar, direkt vor der Haustür verkehren diverse Buslinien
Alt-Moabit 62-63, 10555 Berlin, Berlin, Deutschland (auf Google Maps ansehen)


